Wij zijn bezig met de technieken in onze ruwbouw.
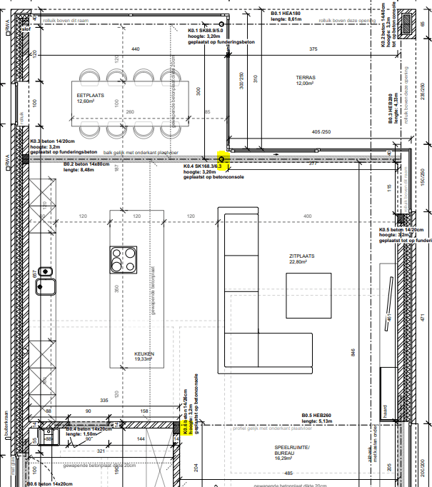
Ik zat hier thuis met een sonos beam en sub, maar heb nu net beslist dat ik liever bedrade 5.1 installatie zou willen om Films en series te kijken.
Het probleem in mijn bouw is dat er weinig muren zijn om de achterste 2 speakers te plaatsen.
:fill(white):strip_exif()/f/image/Abq6sBwneLO8EFxo0vdeH8eQ.png?f=user_large)
Mijn vraag is nu, als ik zoals hierboven in het geel, de speakers plaats tegen het plafond in de hoeken, maar dan ook nog niet eens op een rechte lijn, zou dit veel uitmaken?
Ik kan ze ook mooi aan het plafond hangen (niet in die hoeken), maar dan hangen die boxen in het midden van mijn living, wat optisch toch ook niet alles is.
Zoals nu op het plan zouden ze een stuk minder zichtbaar zijn, maar ze hangen dus niet op 1 lijn. en ook vrij ver.
Opbouwende kritiek en tips zijn welkom
Ik zat hier thuis met een sonos beam en sub, maar heb nu net beslist dat ik liever bedrade 5.1 installatie zou willen om Films en series te kijken.
Het probleem in mijn bouw is dat er weinig muren zijn om de achterste 2 speakers te plaatsen.
:fill(white):strip_exif()/f/image/Abq6sBwneLO8EFxo0vdeH8eQ.png?f=user_large)
Mijn vraag is nu, als ik zoals hierboven in het geel, de speakers plaats tegen het plafond in de hoeken, maar dan ook nog niet eens op een rechte lijn, zou dit veel uitmaken?
Ik kan ze ook mooi aan het plafond hangen (niet in die hoeken), maar dan hangen die boxen in het midden van mijn living, wat optisch toch ook niet alles is.
Zoals nu op het plan zouden ze een stuk minder zichtbaar zijn, maar ze hangen dus niet op 1 lijn. en ook vrij ver.
Opbouwende kritiek en tips zijn welkom