Foto's
:no_upscale():strip_icc():fill(white):strip_exif()/f/image/SHwWmpd2OS1anRHAZVLv6QS9.jpg?f=user_large)
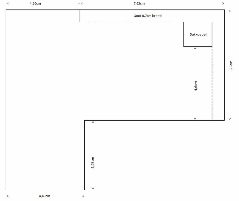
Beschikbare (dak)ruimte
Komende Oktober wordt het dak van de garage vervangen en komt er nog een schuur aan. Het dak van de schuur zal doorlopend zijn aan de huidige situatie.:strip_exif()/f/image/x1HsGJ7daXrktPmSq5UEC7pZ.jpg?f=fotoalbum_large)
Schaduw
We hebben schaduw van een aantal bomen. Deze bomen zijn ongeveer 20m hoog en staan op 10meter van de achterzijde van de gevel (uiterste). Vandaar dat ik een parallel oplossing wil. In de zomer zouden we geen last hebben van de bomen vwb schaduw. In de winter is dit anders..Tuin ligt (100%) op het zuiden.
Jaarverbruik
Huidig verbruik is 6500kwh per jaar. Waarbij ik verwacht dat dit gaat toenemen door nieuwe airco en in de toekomst een elektrische auto. Vandaar dat ik calculeer met ongeveer 8000kwh opbrengst. Maar waar ik nog wel ruimte over hou om extra panelen aan te leggen. Eventueel ooit op het schuinde dak. Dit is nu niet mogelijk vanwege asbest.Huidige elektriciteitsaansluiting
Slimme meter 3 fase en meterkast is afgelopen jaar aangepast en er is nog voldoende ruimte.Budget en doel
€9000,-, besparen op elektriciteitWie gaat het project uitvoeren
leverancier zonnepanelen, er loopt een mantelbuis van meterkast naar de plek waar omvormer komt te hangen.Bijhouden van data
Per paneelReeds verkregen offertes
:strip_exif()/f/image/DP9VXjvbjJ8Os0zYlLuj1Ij5.jpg?f=fotoalbum_large)
Regio
Noord Brabant.Vragen
Wat vinden jullie van de offertes en keuzes die tot nu toe gemaakt zijn?Tegelijkertijd ben ik benieuwd wat jullie van die hyundai 395wp vinden. Er is weinig over bekend.. Wat ik lees is dat ze de goedkoopste zijn met deze techniek. Tegelijkertijd hebben ze 25 Jr garantie en zijn ze compacter en een flinke opbrengst. Ik twijfel dan ook tussen dit aanbod en de longi 375 wp panelen.
[ Voor 5% gewijzigd door Kweetnie080 op 27-07-2021 19:26 ]
:strip_exif()/f/image/BJs9uC54Cyr6zHOz2FEjEUer.jpg?f=fotoalbum_large)
:strip_exif()/f/image/nHw0VHLcKZPsXq8fO57cr5sS.jpg?f=fotoalbum_large)