Info
Betreft plat dak met bitumen (2017) op het zuid-westen zonder verdere schaduw.Meerdere offertes opgevraagd, soms een reactie, soms geen. Na de offertes heb ik een aantal onafhankelijke antwoorden nodig;
- 1 fase of 3 fase in deze situatie en is het het prijsverschil waard qua omvormer?
- Er wordt bij een aanbieder geopperd voor een PV verdeler, nu ben ik niet zo'n fan ervan i.v.m. selectiviteit, is deze aanname correct? (20a Alamat in groepenkast op een 3x25 aansluiting)
- Hoe hebben jullie de kabel (3 of 5x4mm2 in mijn geval) vanaf de groepenkast nar de omvormer gebracht, of wat zijn gebruikelijke manieren? Ik wil de kabel zo min mogelijk in het zicht hebben
- Er loopt nog een offerteaanvraag, of is er al een partij wat er boven uit springt?
- Mag je de verzwaring van 1 fase naar 3 fase ook meenemen in de BTW teruggave?
Foto's
/f/image/EZIA45ODyKl3rjwwrdFNxxZX.png?f=fotoalbum_large)
:fill(white):strip_exif()/f/image/FqmLmBtaVSp7X5ycNo7cS6Q6.png?f=user_large)
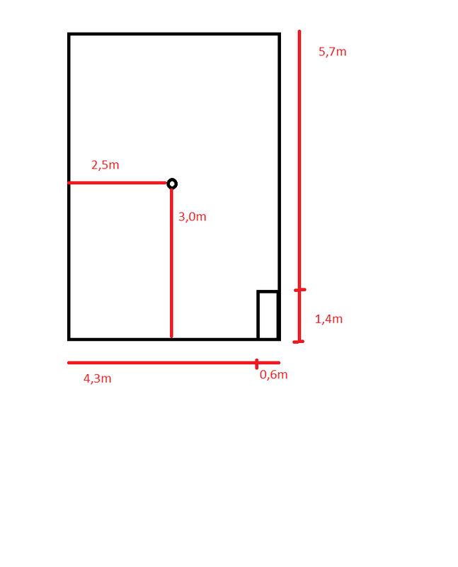
Beschikbare (dak)ruimte
6,4m x 4,2m, alleen een pijpje van de afvoer in het middenSchaduw
GeenJaarverbruik
Gem. 3700kWhHuidige elektriciteitsaansluiting
1 fase, gaan over naar 3 faseBudget en doel
±5K ex, minder afhankelijk zijn van de leverancier en het voordeel eruit halenWie gaat het project uitvoeren
Installateur, kabel eventueel zelf leggen. Meterkast dient uitgebreid te worden met een extra groepenkast welke ik zelf aanbreng. Groep legt de installateur aan i.v.m. garantie.Bijhouden van data
Via een app of lokaal is goedReeds verkregen offertes
/f/image/zQB1eq0cwypD2vJWRvOdHaRT.png?f=fotoalbum_large)
Regio
Provincie Utrecht4800Wp - 225° ZW - 12°
/f/image/KGW2rS9TysQIG0OoSB9PEjg8.png?f=fotoalbum_large)
/f/image/1i6Q06ocR5m2b9yyeOcBSBl0.png?f=fotoalbum_large)
:fill(white):strip_exif()/f/image/swlmH6o9VOPqXH2D5CjIuTVK.png?f=user_large)
:strip_exif()/f/image/u58YzUX26xGFzSdkI7fXrhg4.jpg?f=fotoalbum_large)
:fill(white):strip_exif()/f/image/YOvngdSIcEbjT0QTW6HVGibR.png?f=user_large)
:strip_exif()/f/image/VzMrQ2jHVi6GcG8oPx2Ks8a9.jpg?f=fotoalbum_large)