Wij hebben een nieuwe woning gekocht die eind dit jaar gebouwd gaat worden. De woning is opgebouwd met kalkzandsteen en heeft betonnen vloeren. Buitenbeglazing is triple glas. In deze woning zou ik graag een uitstekend WiFi-netwerk willen hebben en volgens mij heb ik daar nu de kans toe. Binnenkort gaan we namelijk naar de installateur en kunnen we dus bepalen waar loze leidingen moeten komen (waar ik dan zelf een AP via PoE op kan aansluiten).
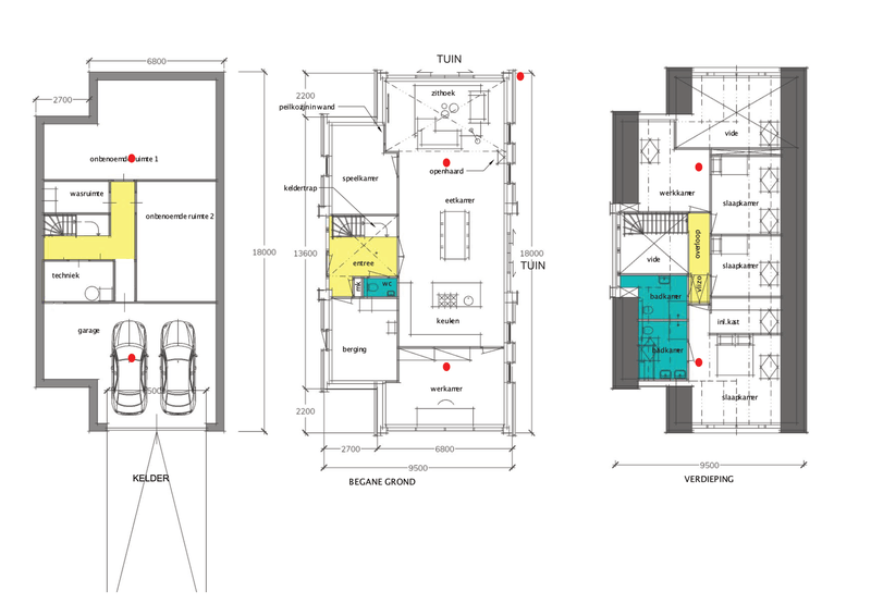
Het is een vrij groot huis (18x9,5m) en twijfel dan ook over de hoeveelheid AP's / de indeling daarvan. In een eenvoudige variant zou ik op elke verdieping één AP plaatsen + 1 richting de tuin. Dat zou er ongeveer zo uitzien (rode punten zijn de AP's):
/f/image/anhdXbNIpaOyGEfkl7fd6JIq.png?f=fotoalbum_large)
We kunnen er echter ook voor kiezen om voor 2 AP's per verdieping te gaan. Enerzijds is dat misschien wat overkill, maar aan de andere kant is er nu de kans om het goed te doen. Dat zou er dan ongeveer zo uit zien:
/f/image/roafVPJ2w7cNTQQa9kd69QVa.png?f=fotoalbum_large)
Hebben jullie nog ideeën hierover of tips voor mij?
Het is een vrij groot huis (18x9,5m) en twijfel dan ook over de hoeveelheid AP's / de indeling daarvan. In een eenvoudige variant zou ik op elke verdieping één AP plaatsen + 1 richting de tuin. Dat zou er ongeveer zo uitzien (rode punten zijn de AP's):
/f/image/anhdXbNIpaOyGEfkl7fd6JIq.png?f=fotoalbum_large)
We kunnen er echter ook voor kiezen om voor 2 AP's per verdieping te gaan. Enerzijds is dat misschien wat overkill, maar aan de andere kant is er nu de kans om het goed te doen. Dat zou er dan ongeveer zo uit zien:
/f/image/roafVPJ2w7cNTQQa9kd69QVa.png?f=fotoalbum_large)
Hebben jullie nog ideeën hierover of tips voor mij?
/f/image/Kc34MUKLFChRqSPf76Jxc2b9.png?f=fotoalbum_large)
:strip_exif()/f/image/YfjF0OGmDCQgUeE0fIrVBxln.jpg?f=fotoalbum_large)