Ik heb een huis gekocht uit 1995 (tussenwoning in de stad), en het is volgens mij niet goed genoeg geventileerd. Er is in het verleden verbouwd, en er is bijvoorbeeld op de benedenverdieping geen centrale afzuiging in de keuken. Enige rooster boven het raam is op de 3de verdieping.
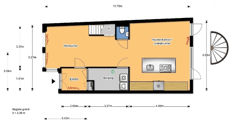
Hier is de plattegrond begane grond:
:strip_exif()/f/image/nMYOrG9vWED8wIqxj95QoeED.jpg?f=fotoalbum_large)
Ik heb hier de radiatoren aangegeven met rode 'krasjes' en de ventilatiegaten met groene circeltjes. Zelfde voor de eerste verdieping:
:strip_exif()/f/image/Ew7Rbxzpw57B3T4QoKeXCnyi.jpg?f=fotoalbum_large)
Aangezien we ook overal HR++ glas inzetten wil ik het nu in 1x goed doen. Opties waar ik aan denk:
- Decentrale ventilatie beneden en op de 1ste verdieping. Ideaal gezien zo'n ventilatieradiator zoals de Climarad V1C, maar daar lijkt ons plafond daar (2.38m) is net te laag te zijn voor de benodigde 2.47m. We kunnen wel zo'n horizontale Climarad aan de anderekant op de begane grond (bij de straatkant) doen denk ik. Maar is dat handig?
- Decentrale WTW ventilatie boxen, dus kleiner. Hebben die een groot genoeg debiet? Ik denk dan voor in de keuken, woonkamer, en slaapkamers (?). Voorbeelden: Vasco, of Zehnder. Of iets anders?
- Gewoon zorgen dat de mechanische afzuiging goed werkt, en laten zitten zo. Maar wat dan in de keuken? Gewone pijpventilator?
Verder ga ik er ook een beetje vanuit dat we ook echt moeten afzuigen in de keuken. Anders zou zo'n Jaga Oxygen (die blaast alleen in geloof ik) ook een optie zijn ipv de radiator in de keuken.
Ik heb hier zo weinig ervaring mee dat wat input erg welkom is!
Hier is de plattegrond begane grond:
:strip_exif()/f/image/nMYOrG9vWED8wIqxj95QoeED.jpg?f=fotoalbum_large)
Ik heb hier de radiatoren aangegeven met rode 'krasjes' en de ventilatiegaten met groene circeltjes. Zelfde voor de eerste verdieping:
:strip_exif()/f/image/Ew7Rbxzpw57B3T4QoKeXCnyi.jpg?f=fotoalbum_large)
Aangezien we ook overal HR++ glas inzetten wil ik het nu in 1x goed doen. Opties waar ik aan denk:
- Decentrale ventilatie beneden en op de 1ste verdieping. Ideaal gezien zo'n ventilatieradiator zoals de Climarad V1C, maar daar lijkt ons plafond daar (2.38m) is net te laag te zijn voor de benodigde 2.47m. We kunnen wel zo'n horizontale Climarad aan de anderekant op de begane grond (bij de straatkant) doen denk ik. Maar is dat handig?
- Decentrale WTW ventilatie boxen, dus kleiner. Hebben die een groot genoeg debiet? Ik denk dan voor in de keuken, woonkamer, en slaapkamers (?). Voorbeelden: Vasco, of Zehnder. Of iets anders?
- Gewoon zorgen dat de mechanische afzuiging goed werkt, en laten zitten zo. Maar wat dan in de keuken? Gewone pijpventilator?
Verder ga ik er ook een beetje vanuit dat we ook echt moeten afzuigen in de keuken. Anders zou zo'n Jaga Oxygen (die blaast alleen in geloof ik) ook een optie zijn ipv de radiator in de keuken.
Ik heb hier zo weinig ervaring mee dat wat input erg welkom is!
[ Voor 29% gewijzigd door HalfVol op 15-04-2021 19:54 . Reden: Geen racties, nu duidelijker ]