Ik zou ook graag wat energie opwekken, elektriciteitsverbruik begint toch een beetje uit de hand te lopen (3700kWh, 2 personen en zeker geen gasloos huis. Kan er niet echt een oorzaak voor aanwijzen, maar dat is een ander onderwerp).
Probleem zit hem ben ik bang wel in de beperkte plaatsingsmogelijkheden. Ons zadeldak (40 graden helling, betonpannen) is enigszins NO en ZW georiënteerd, waarbij op de NO (achterzijde woning) een dakkapel staat. De voorzijde (ZW) heeft een dakraam. Ik kan dus niet eenvoudig even een hele zijde vol leggen. Ook is het dak niet zo breed, 4 meter. Zie het rode kader van google maps, dit geeft wel een vertekend beeld want de nok is gewoon symmetrisch. Aan de zuidkant heb ik een deel plat dak (groene kader), de helft is van ons, andere helft buren. Het totaal is 8 meter breed, dus 4 meter kan mogelijk gebruikt worden, en zo'n 8 meter diep. Hier plaatsten leek me eerst wel interessant ivm de eenvoud van plaatsen, betere koeling op warme dagen. Maar ik denk dat ik hier teveel hinder heb van schaduwval van de woning van mijn buren. Dat zie je ook op de foto van google maps terug.
/f/image/s9zO68gBwbBiHazQRleW2fO4.png?f=fotoalbum_tile)
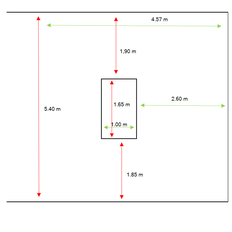
Dus verdere mogelijkheden verkend, en met mijn dakraam passen aan de voorzijde (ZW) vermoedelijk net 6 panelen aan de rechterkant (3 rijen onder elkaar van 2 panelen portrait). Aan de achterkant zouden er links van de dakkapel mogelijk ook net 3 onder elkaar passen, maar daar zit de CV schoorsteen in de weg. In mijn optiek valt daar wat plaatsen daarom af, misschien passen er nog net 2 stuks. Ik moet wel zeggen dat esthetica voorrang heeft op absolute opbrengst. We willen niet zo'n legpuzzel met her en der waar iets past een paneel gepropt.
:strip_exif()/f/image/OsrgXp8IOVDwZ9y8TrYH36EL.jpg?f=fotoalbum_tile)
Even weer terug naar de voorzijde. Daar staat een beste boom (zie foto van wederom google maps, uit 2014 inmiddels). Deze is behoorlijk hoog, staat ook best dicht bij de woning. De top komt zeker zo hoog als de nok van de woning. Helaas worden deze door de gemeente amper bijgehouden, paar dode takken aan de onderkant misschien weghalen. Ben bang dat deze voorlopig alleen maar hoger kan worden, weghalen hoeft voor mij absoluut niet want ik hou wel van een groene leefomgeving. Maar zoals je op de foto kunt zien, gemaakt op 4 mei (vandaar de vlag half stok
) rond 19.30 toch een beste hoeveelheid schaduw op het dak
:strip_exif()/f/image/7N4mqcy0DOFr6BgI7TPfTUVs.jpg?f=fotoalbum_tile)
Mijn vraag is natuurlijk; wat zou gezien de omstandigheden nou de beste keus van leggen zijn? En welk type panelen, micro omvormers gebruiken? Of is dit bijna kansloos, is de terugverdientijd met dergelijke schaduw niet interessant (bv meer dan 10 jaar ofzo).
Uiteraard ingelezen in de diverse topics, maar ik kom er toch niet echt aan uit wat wijsheid is. Hulp wordt gewaardeerd
Bedankt voor de inzichten alvast!
Probleem zit hem ben ik bang wel in de beperkte plaatsingsmogelijkheden. Ons zadeldak (40 graden helling, betonpannen) is enigszins NO en ZW georiënteerd, waarbij op de NO (achterzijde woning) een dakkapel staat. De voorzijde (ZW) heeft een dakraam. Ik kan dus niet eenvoudig even een hele zijde vol leggen. Ook is het dak niet zo breed, 4 meter. Zie het rode kader van google maps, dit geeft wel een vertekend beeld want de nok is gewoon symmetrisch. Aan de zuidkant heb ik een deel plat dak (groene kader), de helft is van ons, andere helft buren. Het totaal is 8 meter breed, dus 4 meter kan mogelijk gebruikt worden, en zo'n 8 meter diep. Hier plaatsten leek me eerst wel interessant ivm de eenvoud van plaatsen, betere koeling op warme dagen. Maar ik denk dat ik hier teveel hinder heb van schaduwval van de woning van mijn buren. Dat zie je ook op de foto van google maps terug.
/f/image/s9zO68gBwbBiHazQRleW2fO4.png?f=fotoalbum_tile)
Dus verdere mogelijkheden verkend, en met mijn dakraam passen aan de voorzijde (ZW) vermoedelijk net 6 panelen aan de rechterkant (3 rijen onder elkaar van 2 panelen portrait). Aan de achterkant zouden er links van de dakkapel mogelijk ook net 3 onder elkaar passen, maar daar zit de CV schoorsteen in de weg. In mijn optiek valt daar wat plaatsen daarom af, misschien passen er nog net 2 stuks. Ik moet wel zeggen dat esthetica voorrang heeft op absolute opbrengst. We willen niet zo'n legpuzzel met her en der waar iets past een paneel gepropt.
:strip_exif()/f/image/OsrgXp8IOVDwZ9y8TrYH36EL.jpg?f=fotoalbum_tile)
Even weer terug naar de voorzijde. Daar staat een beste boom (zie foto van wederom google maps, uit 2014 inmiddels). Deze is behoorlijk hoog, staat ook best dicht bij de woning. De top komt zeker zo hoog als de nok van de woning. Helaas worden deze door de gemeente amper bijgehouden, paar dode takken aan de onderkant misschien weghalen. Ben bang dat deze voorlopig alleen maar hoger kan worden, weghalen hoeft voor mij absoluut niet want ik hou wel van een groene leefomgeving. Maar zoals je op de foto kunt zien, gemaakt op 4 mei (vandaar de vlag half stok
:strip_exif()/f/image/7N4mqcy0DOFr6BgI7TPfTUVs.jpg?f=fotoalbum_tile)
Mijn vraag is natuurlijk; wat zou gezien de omstandigheden nou de beste keus van leggen zijn? En welk type panelen, micro omvormers gebruiken? Of is dit bijna kansloos, is de terugverdientijd met dergelijke schaduw niet interessant (bv meer dan 10 jaar ofzo).
Uiteraard ingelezen in de diverse topics, maar ik kom er toch niet echt aan uit wat wijsheid is. Hulp wordt gewaardeerd
/f/image/eDp9fVPMzw1WA5nz0ZGLaG1D.png?f=fotoalbum_tile)
/f/image/neD5dfegJ0QM26rdNHuzxMQq.png?f=fotoalbum_tile)
:strip_exif()/f/image/3gNbjpVe5GE6fXJtp00tI7hi.jpg?f=fotoalbum_tile)
:strip_exif()/f/image/AfWO4cnev7eyA6hY8IwWvl2y.jpg?f=fotoalbum_tile)
:strip_exif()/f/image/os5mF2YkSTUTdZBJLVXVFSfm.jpg?f=fotoalbum_tile)
:strip_exif()/f/image/A3l0Kgw3q7ezSrODkFlaP5ZR.jpg?f=fotoalbum_tile)
:strip_exif()/f/image/k34RgxXkoCa2oQjYq2Oo6KVV.jpg?f=fotoalbum_tile)
:strip_exif()/f/image/DeQVSjbvwFraPVREFyydy9WL.jpg?f=fotoalbum_large)
/f/image/9DL8ytGlegIQ2FYFUGE0XhN9.png?f=fotoalbum_tile)
/f/image/TDIb2CbLMnp4Epy4ZJr26tWP.png?f=fotoalbum_tile)
/f/image/85DCN4fXfm4MU5zFT66iIQnm.png?f=fotoalbum_tile)
/f/image/73WHrPyTtUcAZCYdXqd8YQm4.png?f=fotoalbum_tile)
:strip_exif()/f/image/TTPSCeEiALXm5T8LFoaMGDnI.jpg?f=fotoalbum_tile)
:strip_exif()/f/image/XFsxdKKMWSneC57lF43o4ypW.jpg?f=fotoalbum_tile)
:strip_exif()/f/image/EbOk6E3OREfnHplzKVGsrFNP.jpg?f=fotoalbum_tile)