Hallo allemaal,
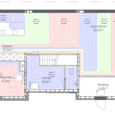
In een nieuw te bouwen huis komt vloerverwarming als enige verwarming. Er is een legplan ontvangen als voorstel, maar de opdrachtgevers weten er eigenlijk niks van af. Als dit er eenmaal in ligt valt het niet echt meer aan te passen, dus willen ze wel graag weten of dit een 'goed' legplan is, of dat er wat zaken niet handig zijn. Hier onder tekeningen van het legplan. Ik heb die hoop dat iemand hier er iets zinnigs over kan zeggen?
hartelijk dank!
In een nieuw te bouwen huis komt vloerverwarming als enige verwarming. Er is een legplan ontvangen als voorstel, maar de opdrachtgevers weten er eigenlijk niks van af. Als dit er eenmaal in ligt valt het niet echt meer aan te passen, dus willen ze wel graag weten of dit een 'goed' legplan is, of dat er wat zaken niet handig zijn. Hier onder tekeningen van het legplan. Ik heb die hoop dat iemand hier er iets zinnigs over kan zeggen?
hartelijk dank!
![]() |
![]() |
[ Voor 38% gewijzigd door itris op 24-11-2020 23:07 ]
/f/image/Tx7czX9LTUvN4IMMS6eviM95.png?f=fotoalbum_tile)
/f/image/uVxssuBv48XSNFpYhoRghdUH.png?f=fotoalbum_tile)