Alvast mijn excuses voor de lange post.
Mijn partner en ik hebben een woning gekocht waar we waarschijnlijk in februari de sleutels van krijgen. Nu bestaat de woning soort van uit 2 delen, waardoor we 1 deel netjes kunnen verbouwen terwijl het andere deel gewoon leefbaar blijft. Dit biedt ons de mogelijkheid om grondig te gaan verbouwen. Het meeste zullen we zelf doen, waardoor we uiteindelijk "relatief" goedkoop hopen te eindigen met onze droomwoning.
Nu lopen we tegen het luxe probleem aan dat we bij het opnieuw indelen van de ruimtes (Het grootste oppervlak in de woning is momenteel niet echt in gebruik als woonruimte) steeds weer vast uitkomen op 2 verschillende indelingen die beide voors en tegens hebben.
In de hoop dat we misschien nog andere indelingen vinden (Wij zelf zitten een beetje vast in dezelfde denk patronen) zou ik graag wat meningen hier horen over hoe je de ruimtes het beste kan indelen.
Dit is de huidige situatie::strip_exif()/f/image/Je38RbKyYU4e59W6XYItTddU.jpg?f=fotoalbum_large)
:strip_exif()/f/image/0mf2BTzAyAvDMMMpk0MMERH9.jpg?f=fotoalbum_large)
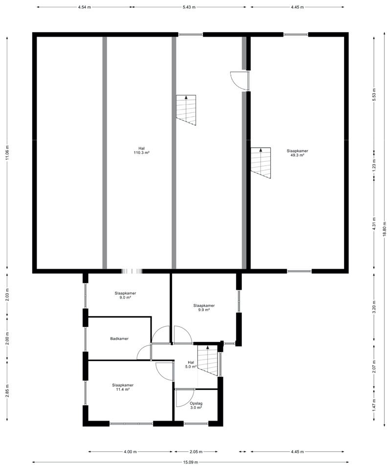
Zoals je kan zien, bestaat de woning eigenlijk uit 2 delen. De schuur bestaat uit muren zonder spouw en willen we goed gaan isoleren met een voorzetwand binnen (Aan ruimte geen tekort tenslotte
). Verder bestaat de draagconstructie uit een aantal spanten. De verdiepingsvloer in de schuur is een houten vloer, en willen we deels gaan verhogen om gelijk te komen met de horizontale spanten. Momenteel heb je beneden de plafond op 240cm hoogte, en boven nog eens ~650cm tot aan de nok. Dit terwijl boven de spanten nu zo'n 65cm boven de verdiepingsvloer liggen. Alleen het meest linker deel (Die grijze lijnen zijn de spant locaties) houden we op de huidige hoogte, omdat die de horizontale spant hoger heeft liggen dan de rest, en omdat er een soort van goederen lift van de werkplaats naar de opslag erboven gaat. De muren in de schuur bestaan allemaal uit houten platen of niet dragende stenen muren. Aan de achterkant van de schuur willen we een dakkapel van zo'n 9 meter laten maken zodat we daar meer ruimte (en daglicht) hebben die niet te maken heeft met een laag dak.
Het deel aan de voorkant (Het kleine blok) is later bijgebouwd rond 1958 en bestaat volledig uit betonvloeren, tot aan de zolder (welke niet staat afgebeeld). De vloeren tussen de delen hebben momenteel een groter hoogte verschil dan dat ze gaan krijgen op het moment dat we de vloer in de schuur verhoogd hebben. De muur in het midden is dragend en kan niet zomaar verplaatst worden.
Verder hebben we een aantal eisen gesteld:
Verder misschien nog goed om te vermelden is dat we van plan zijn eerst de schuur te verbouwen, en daarna pas de woning voor.
Kortweg, het doel van ons om dit topic te openen is om uit te vogelen of er andere indelingen te bedenken zijn. De focus die we momenteel leggen is op de grove indeling, niet op muren die op de centimer precies komen te liggen (Heel exacte maatgevingen zullen we pas hebben na sleuteloverdracht)
Mijn partner en ik hebben een woning gekocht waar we waarschijnlijk in februari de sleutels van krijgen. Nu bestaat de woning soort van uit 2 delen, waardoor we 1 deel netjes kunnen verbouwen terwijl het andere deel gewoon leefbaar blijft. Dit biedt ons de mogelijkheid om grondig te gaan verbouwen. Het meeste zullen we zelf doen, waardoor we uiteindelijk "relatief" goedkoop hopen te eindigen met onze droomwoning.
Nu lopen we tegen het luxe probleem aan dat we bij het opnieuw indelen van de ruimtes (Het grootste oppervlak in de woning is momenteel niet echt in gebruik als woonruimte) steeds weer vast uitkomen op 2 verschillende indelingen die beide voors en tegens hebben.
In de hoop dat we misschien nog andere indelingen vinden (Wij zelf zitten een beetje vast in dezelfde denk patronen) zou ik graag wat meningen hier horen over hoe je de ruimtes het beste kan indelen.
Dit is de huidige situatie:
De begane grond
:strip_exif()/f/image/Je38RbKyYU4e59W6XYItTddU.jpg?f=fotoalbum_large)
De eerste verdieping
:strip_exif()/f/image/0mf2BTzAyAvDMMMpk0MMERH9.jpg?f=fotoalbum_large)
Zoals je kan zien, bestaat de woning eigenlijk uit 2 delen. De schuur bestaat uit muren zonder spouw en willen we goed gaan isoleren met een voorzetwand binnen (Aan ruimte geen tekort tenslotte
Het deel aan de voorkant (Het kleine blok) is later bijgebouwd rond 1958 en bestaat volledig uit betonvloeren, tot aan de zolder (welke niet staat afgebeeld). De vloeren tussen de delen hebben momenteel een groter hoogte verschil dan dat ze gaan krijgen op het moment dat we de vloer in de schuur verhoogd hebben. De muur in het midden is dragend en kan niet zomaar verplaatst worden.
Verder hebben we een aantal eisen gesteld:
- De werkplaats moet ongeveer even groot blijven en dezelfde ligging behouden
- We willen een grote leefkeuken die goed benaderbaar is vanuit een woonkamer, en die ook connectie heeft met de achtertuin (dus eigenlijk altijd wel in de schuur)
- Een bijkeuken
- Een (grote) werkkamer met daglicht omdat ik altijd (ook buiten corona) thuiswerk
- Een grotere badkamer
- Een centraal gelegen technische ruimte voor de CV ketel en om aansturing in te kunnen maken voor bedrade domotica door het hele huis
Verder misschien nog goed om te vermelden is dat we van plan zijn eerst de schuur te verbouwen, en daarna pas de woning voor.
Kortweg, het doel van ons om dit topic te openen is om uit te vogelen of er andere indelingen te bedenken zijn. De focus die we momenteel leggen is op de grove indeling, niet op muren die op de centimer precies komen te liggen (Heel exacte maatgevingen zullen we pas hebben na sleuteloverdracht)
:strip_exif()/f/image/ZwJenTDSSUr1TiMl86LB8jSx.jpg?f=fotoalbum_large)
:strip_exif()/f/image/atqPa5vME40H5YEO1qMcoT3r.jpg?f=fotoalbum_large)
:strip_exif()/f/image/Us0l0YnCVl6KxQ4c8k0TBETb.jpg?f=fotoalbum_large)
/f/image/0gT6pLrEl5ugMomxMrtynnGE.png?f=fotoalbum_large)
/f/image/90oProZMn1cFwOKZJSzrSNFf.png?f=fotoalbum_large)
:fill(white):strip_exif()/f/image/a1CxEwtlyslbqNk3vmL6KEyS.png?f=user_large)
/f/image/EFUR3K25S2JLe1UyuRYNx6xu.png?f=fotoalbum_large)
/f/image/eLdNujiOzdLLb7si8kyOIxM3.png?f=fotoalbum_large)
/f/image/rAYhcjvjngf198QaonXqh8wc.png?f=fotoalbum_large)