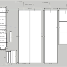
ik ben van plan om een (wand)kast te maken voor in de garage
een 'ruwe' schets:
/f/image/tr4BTzxkMZLanI7PAuTVDpeU.png?f=fotoalbum_large)
In eerste instantie 5 modules, misschien doe ik er 7. Even kijken wat het per kast gaat doen qua kosten
schatting nu ligt rond de 150euro inc.
Formaat per module / excl. sokkel:
2400 x 600 x 540
of
2580 x 600 x 540
Ik wil hiervoor MDF gaan gebruiken - de dragers & bodem van de lades wellicht van ander materiaal (Tips?)
waar ik even aan twijfel is het dikte van het MDF :
18mm of 16mm
de 16mm is online & op maat gezaagd verkrijgbaar in de 2580mm
hiermee benut ik de hoogte nog beter van de garage (met sokkel kom ik dan op 2680 waar ik 2700 heb - iets marge)
alternatief is dat ik kies voor 18mm maar de kasten in 2 delen op bouw; lade blok & schappen blok - en dan aan elkaar vast schroef
verder ga ik gebruik maken van:
- 5 potscharnieren per deur
- 450mm volledig uittrekbare geleiders (max 45kg) per lade
- legplanken verstelbaar d.m.v. gaatjes in de wanden
de sokkel ga ik maken van 100x22 vuren geschaafd (de voorkant ga ik deze waarschijnlijk nog 3 of 5cm naar binnen zetten)
een 'ruwe' schets:
/f/image/tr4BTzxkMZLanI7PAuTVDpeU.png?f=fotoalbum_large)
In eerste instantie 5 modules, misschien doe ik er 7. Even kijken wat het per kast gaat doen qua kosten
Formaat per module / excl. sokkel:
2400 x 600 x 540
of
2580 x 600 x 540
Ik wil hiervoor MDF gaan gebruiken - de dragers & bodem van de lades wellicht van ander materiaal (Tips?)
waar ik even aan twijfel is het dikte van het MDF :
18mm of 16mm
de 16mm is online & op maat gezaagd verkrijgbaar in de 2580mm
hiermee benut ik de hoogte nog beter van de garage (met sokkel kom ik dan op 2680 waar ik 2700 heb - iets marge)
alternatief is dat ik kies voor 18mm maar de kasten in 2 delen op bouw; lade blok & schappen blok - en dan aan elkaar vast schroef
verder ga ik gebruik maken van:
- 5 potscharnieren per deur
- 450mm volledig uittrekbare geleiders (max 45kg) per lade
- legplanken verstelbaar d.m.v. gaatjes in de wanden
de sokkel ga ik maken van 100x22 vuren geschaafd (de voorkant ga ik deze waarschijnlijk nog 3 of 5cm naar binnen zetten)
[ Voor 5% gewijzigd door Crazy- op 05-05-2020 02:02 ]
12,85kWp - ZB 7,5m2/400l - 5kW Pana H WP (CV&SWW) - 13,8kWh accu
/f/image/NtyfCOtnYZSXfkCRirSieCgI.png?f=fotoalbum_tile)
/f/image/aMagFknZCeh8CdE4zNg1rvEy.png?f=fotoalbum_tile)
/f/image/lY3c3JGxa8c49pjzEtyIdEDK.png?f=fotoalbum_tile)