Nieuwe woning, nieuwe kansen..
Op mijn vorige woning had ik 51 SF-170-ers gelegd maar die is verkocht, dus op naar het volgende project.
Na het strippen/opknappen/opbouwen van 2 woningen nu over een andere boeg en gekozen voor nieuwbouw.
Samen met de architect tot een ontwerp gekomen wat ons aanspreekt.
Er komt een warmtepomp in (naja verplicht stadsverwarming, hier zal ik jullie niet mee vermoeien), dus natuurlijk ook zonnepanelen.
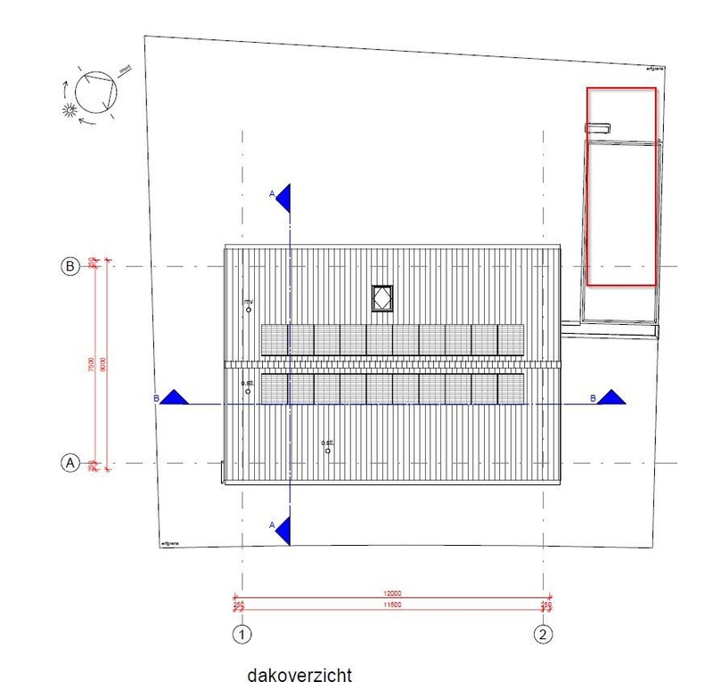
De ligging van het dakvlak is ongunstig. Zie onderstaande situatie schets.
:strip_exif()/f/image/Dix1HCWeOZ8tfIZAzaFGAjGG.jpg?f=fotoalbum_large)
Mijn eerste idee:
2x 11 Panelen op een zo-nw opstelling. De dakhoek van de woning 45graden. De getekende pijpjes op het dak zijn allemaal van die 'platte pan' versies. Deze zullen dus geen schaduw opwerpen. Degene in de schets links naast de panelen komt er niet. Hierdoor kun je mooi 2x 11 gecentreerd op het dak kwijt.
Bijv full black trina 325wp.
1x 3fase omvormer
Nieuwe mogelijkheid:
De schuur heb ik met rodelijnen opnieuw erin gezet. Deze komt verder naar achter dus valt nu eerder uit de schaduw van de woning (10,1m hoog). Afmeting 7 x 3 met een platdak.
Ipv de NW gerichte panelen hier panelen op ~zuid leggen, dit zullen er dan helaas wel minder worden maar gecompenseerd door een betere opbrengst.
Waar zit ik nu mee?
EDIT:
Naar aanleiding van @Cpt.Chaos zijn opmerking. De WAF-factor moet zeker niet onderschat worden. Met veel moeite akkoord voor 1rij op de voorzijde van de woning. Meer is geen optie. Ik moet dus uitwijken naar andere zijdes
Op mijn vorige woning had ik 51 SF-170-ers gelegd maar die is verkocht, dus op naar het volgende project.
Na het strippen/opknappen/opbouwen van 2 woningen nu over een andere boeg en gekozen voor nieuwbouw.
Samen met de architect tot een ontwerp gekomen wat ons aanspreekt.
Er komt een warmtepomp in (naja verplicht stadsverwarming, hier zal ik jullie niet mee vermoeien), dus natuurlijk ook zonnepanelen.
De ligging van het dakvlak is ongunstig. Zie onderstaande situatie schets.
:strip_exif()/f/image/Dix1HCWeOZ8tfIZAzaFGAjGG.jpg?f=fotoalbum_large)
Mijn eerste idee:
2x 11 Panelen op een zo-nw opstelling. De dakhoek van de woning 45graden. De getekende pijpjes op het dak zijn allemaal van die 'platte pan' versies. Deze zullen dus geen schaduw opwerpen. Degene in de schets links naast de panelen komt er niet. Hierdoor kun je mooi 2x 11 gecentreerd op het dak kwijt.
Bijv full black trina 325wp.
1x 3fase omvormer
Nieuwe mogelijkheid:
De schuur heb ik met rodelijnen opnieuw erin gezet. Deze komt verder naar achter dus valt nu eerder uit de schaduw van de woning (10,1m hoog). Afmeting 7 x 3 met een platdak.
Ipv de NW gerichte panelen hier panelen op ~zuid leggen, dit zullen er dan helaas wel minder worden maar gecompenseerd door een betere opbrengst.
Waar zit ik nu mee?
- Wat is de ervaring met op NW gerichte panelen?
- Kan ik misschien beter kiezen voor minder panelen maar betere ligging op de schuur.
- Ik ben geen fan van solar edge, dat probeer ik erbuiten te houden. Wanneer ik kies voor de ligging op de schuur dan denk ik dat optimizers noodzakelijk zijn i.v.m. draaiing van de zon om de woning heen en het anders lang duurt voor de string actief wordt.
- Hoe aan te pakken met de omvormers als ik kies voor woning + schuur. Dit worden dan waarschijnlijk 2x 1 fase varianten? Naar ik begrepen heb wordt er nu niet en in de nabij toekomst niet naar de belasting van de fase gekeken door de energiemaatschappij bij de afrekening dus dat zie ik niet als een probleem
EDIT:
Naar aanleiding van @Cpt.Chaos zijn opmerking. De WAF-factor moet zeker niet onderschat worden. Met veel moeite akkoord voor 1rij op de voorzijde van de woning. Meer is geen optie. Ik moet dus uitwijken naar andere zijdes
[ Voor 4% gewijzigd door thefox154 op 28-04-2020 11:23 ]
:fill(white):strip_exif()/f/image/n9nvbSTZzHBevPXCHUOU8SmB.png?f=user_large)