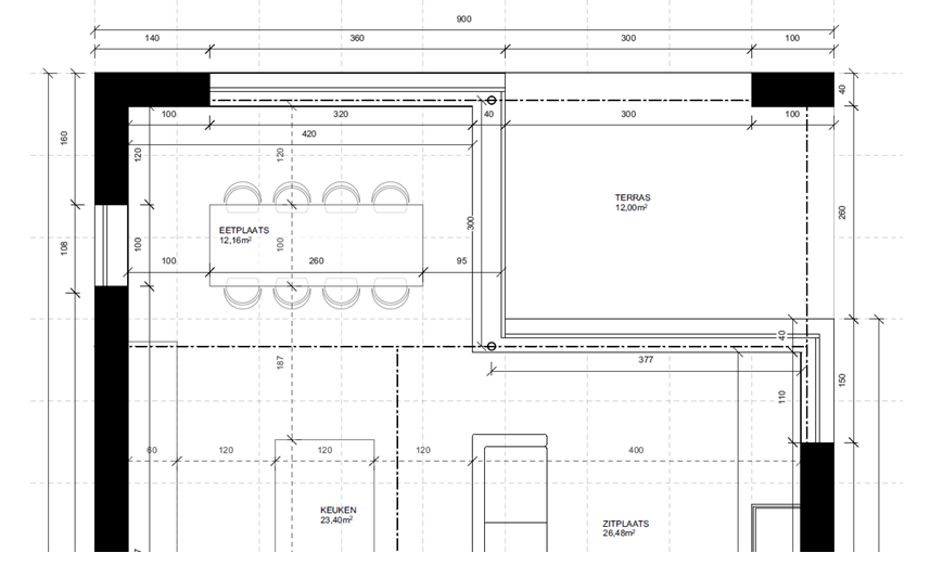
In ons huidige plan van de architect hebben we aan de zuid kant 3 ramen. 1 raam van 3m60 aan de tuinkant waar we sowieso een rolluik zouden plaatsen voor de zon.
/f/image/YUvXOpOBuUcJQH8w3DgXjt0I.png?f=fotoalbum_large)
Zoals je hierboven merkt zijn er nog 3 andere ramen, waarvan 2 onder het terras en 1 nog langs de westkant.
Het terras was al met het idee in het achterhoofd dat we de zon (oververhitting) wat willen vermijden.
Nu zijn er nog 4 opties (behalve het ene rolluik die er al zou komen):
Optie A = 2 rolluiken laten doorlopen naar de buitenmuur, met als voordeel dat je minder brede rolluiken nodig hebt. En dat je ook geen zorgen moet maken over je EPB want die rolluiken zitten buiten je schil. Raam in westen blijft ofwel zonder rolluik ofwel apart rolluik aan raam.
/f/image/2aune1CmUdvdi7Ju2gaefG7e.png?f=fotoalbum_large)
Optie B = net zoals A, maar dan laat ik het rolluik rechts volledig doorlopen.
/f/image/9LWjhDOBWKzlXYjGP5iaj9Wm.png?f=fotoalbum_large)
Optie C= De rolluiken wel op de ramen. Nadeel in mijn ogen zijn dan de voordelen van A die je verliest, ook bredere rolluiken nodig. In mijn ogen enkel maar nadelen, maar nochtans zie je deze overal tov van optie A/B.
/f/image/ZXpBkJKz3KXzgal4L4uj42KM.png?f=fotoalbum_large)
Optie D = Geen extra rolluiken behalve het rolluik die ik eerder aanhaalde aan de tuinkant.
Ik hoor graag bij alle opties jullie bedenkingen of jullie duidelijke voorkeur, of eventuele andere opties. Mijn voorkeur gaat sterk uit naar A of B.
/f/image/YUvXOpOBuUcJQH8w3DgXjt0I.png?f=fotoalbum_large)
Zoals je hierboven merkt zijn er nog 3 andere ramen, waarvan 2 onder het terras en 1 nog langs de westkant.
Het terras was al met het idee in het achterhoofd dat we de zon (oververhitting) wat willen vermijden.
Nu zijn er nog 4 opties (behalve het ene rolluik die er al zou komen):
Optie A = 2 rolluiken laten doorlopen naar de buitenmuur, met als voordeel dat je minder brede rolluiken nodig hebt. En dat je ook geen zorgen moet maken over je EPB want die rolluiken zitten buiten je schil. Raam in westen blijft ofwel zonder rolluik ofwel apart rolluik aan raam.
/f/image/2aune1CmUdvdi7Ju2gaefG7e.png?f=fotoalbum_large)
Optie B = net zoals A, maar dan laat ik het rolluik rechts volledig doorlopen.
/f/image/9LWjhDOBWKzlXYjGP5iaj9Wm.png?f=fotoalbum_large)
Optie C= De rolluiken wel op de ramen. Nadeel in mijn ogen zijn dan de voordelen van A die je verliest, ook bredere rolluiken nodig. In mijn ogen enkel maar nadelen, maar nochtans zie je deze overal tov van optie A/B.
/f/image/ZXpBkJKz3KXzgal4L4uj42KM.png?f=fotoalbum_large)
Optie D = Geen extra rolluiken behalve het rolluik die ik eerder aanhaalde aan de tuinkant.
Ik hoor graag bij alle opties jullie bedenkingen of jullie duidelijke voorkeur, of eventuele andere opties. Mijn voorkeur gaat sterk uit naar A of B.
