Beste mede-tweakers,
Mijn vrouw en ik hebben onlangs de knoop doorgehakt om een nieuwbouwhuis te betrekken. Daar komt een hoop geregel bij kijken maar het grote voordeel is dat je het gelijk goed kan doen. Eén van de punten waar ik nu aandacht aan besteed is het inrichten van het audiogedeelte van mijn woonkamer. Ik heb daar weinig ervaring mee en de hoeveelheid aan opties maakt dat ik veel bomen zie, maar geen bos. Dus hopelijk kunnen jullie mij een beetje op weg helpen.
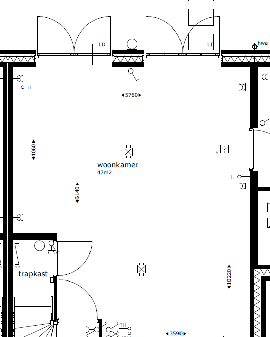
Allereerst de toekomstige woonkamer:

Aan de linkermuur <4060> willen we een muurvullende boeken/tv kast gaan maken. Hier zal dan ook de geluidsinterface gesitueerd gaan worden. Daarbij is het goed om te weten dat ik veel meer muziek (spotify, geen FLAC bijv) gefocused ben dan tv. Dan beginnen echter de vragen:
-ga ik voor een 2.1 systeem (met speakers in de boekenkast) of 5.1 systeem met 2 extra satellite-speakers aan de rechterkant van de kamer? Zijn extra satellite speakers de meerwaarde (en meerwerk) eigenlijk wel waard?
-heeft een subwoofer wel meerwaarde?
-kan ik mijn huidige Marshall Woburn in mijn nieuwe set-up gebruiken, of is dat niet wenselijk i.v.m. klankkleur e.d.?
-ga ik voor active of passive speakers
-waar moet ik beginnen bij het uitzoeken van een versterker/receiver?
Hopelijk hebben jullie wat tips of punten waar ik op moet letten. Want op internet zijn genoeg sites te vinden die overal een mening over hebben, maar ik vind het lastig om dat toe passen op mijn situatie.
Mijn vrouw en ik hebben onlangs de knoop doorgehakt om een nieuwbouwhuis te betrekken. Daar komt een hoop geregel bij kijken maar het grote voordeel is dat je het gelijk goed kan doen. Eén van de punten waar ik nu aandacht aan besteed is het inrichten van het audiogedeelte van mijn woonkamer. Ik heb daar weinig ervaring mee en de hoeveelheid aan opties maakt dat ik veel bomen zie, maar geen bos. Dus hopelijk kunnen jullie mij een beetje op weg helpen.
Allereerst de toekomstige woonkamer:

Aan de linkermuur <4060> willen we een muurvullende boeken/tv kast gaan maken. Hier zal dan ook de geluidsinterface gesitueerd gaan worden. Daarbij is het goed om te weten dat ik veel meer muziek (spotify, geen FLAC bijv) gefocused ben dan tv. Dan beginnen echter de vragen:
-ga ik voor een 2.1 systeem (met speakers in de boekenkast) of 5.1 systeem met 2 extra satellite-speakers aan de rechterkant van de kamer? Zijn extra satellite speakers de meerwaarde (en meerwerk) eigenlijk wel waard?
-heeft een subwoofer wel meerwaarde?
-kan ik mijn huidige Marshall Woburn in mijn nieuwe set-up gebruiken, of is dat niet wenselijk i.v.m. klankkleur e.d.?
-ga ik voor active of passive speakers
-waar moet ik beginnen bij het uitzoeken van een versterker/receiver?
Hopelijk hebben jullie wat tips of punten waar ik op moet letten. Want op internet zijn genoeg sites te vinden die overal een mening over hebben, maar ik vind het lastig om dat toe passen op mijn situatie.