Het einde van mijn 'kleinschalige' nieuwbouwproject komt in zicht en graag wil ik mijn woning voorzien van zonnepanelen.
De woning staat in de lange richting oost-west. Echter, zowel in het oosten als zeker in het westen, zijn veel (hoge) bomen aanwezig die al vroeg in de namiddag het zonlicht blokkeren.
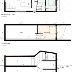
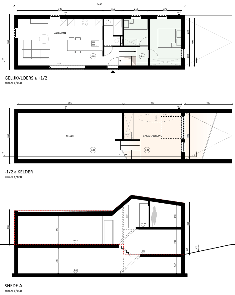
Het grootste dakvlak meet 4m30 bij 7m90, het tweede dakvlak (onder een hoek maar wel epdm folie als plat dak) meet 4m30 bij 4m30.
Ruwweg heb ik de volgende componenten in gedachten:
- 16x ~320Wp paneel
- Micro omvormers (4x APS QS1, totaal 4800W. Met huidige belastingregels in België niet ideaal, maar ik heb een voorkeur voor micro-omvormers en gezien vele schaduw...)
Een optie: kleine dakopperlvak, 2x2 panelen vlak gemonteerd (hoe met ballast? Tips voor montagesysteem dat dit kan?), op het tweede dakstuk dan 2x6 in een portret schans? Of zijn er hier betere configuraties mogelijk?
Alvast bedankt voor alle input!
Oriëntatie en info:
Een (ietwat verouderd, doch wel correct voor het dak) plan en enkele foto's van de dakvlakken:![]() | ![]() | ![]() |
![]() |
De woning staat in de lange richting oost-west. Echter, zowel in het oosten als zeker in het westen, zijn veel (hoge) bomen aanwezig die al vroeg in de namiddag het zonlicht blokkeren.
Het grootste dakvlak meet 4m30 bij 7m90, het tweede dakvlak (onder een hoek maar wel epdm folie als plat dak) meet 4m30 bij 4m30.
Elektriciteitsverbruik/wensen:
Het huis is volledig elektrisch (verwarmen, warm water, koken, ...) en ik schat een jaarlijks verbruik in van ongeveer 3500 kWh en zou dan ook graag op zijn minst dit op jaarbasis opwekken. De elektrische installatie binnen heb ik volledig zelf uitgevoerd, de zonnepanelen wil ik dan ook graag zelf plaatsen en aansluiten.Wat heb ik gedachten?
Ondanks al maanden het PV topic te volgen blijft het moeilijk om erg concreet te worden...Ruwweg heb ik de volgende componenten in gedachten:
- 16x ~320Wp paneel
- Micro omvormers (4x APS QS1, totaal 4800W. Met huidige belastingregels in België niet ideaal, maar ik heb een voorkeur voor micro-omvormers en gezien vele schaduw...)
Montage?
Dit is nog het lastigste punt... Hoe raak ik 16 panelen optimaal kwijt op mijn dak? Ondanks dat ik ze zelf niet storend vind, liefst niet in een grote/hoge schans die ver boven het dak uitsteekt.Een optie: kleine dakopperlvak, 2x2 panelen vlak gemonteerd (hoe met ballast? Tips voor montagesysteem dat dit kan?), op het tweede dakstuk dan 2x6 in een portret schans? Of zijn er hier betere configuraties mogelijk?
Leverancier?
Ik woon regio Aarschot-Diest en idealiter vind ik dan ook een leverancier in de buurt. Iemand tips? Met de huidige corona crisis is het helemaal vervelend geworden om ze nog spoedig te kunnen kopen, ik zou ze alsnog graag dit voorjaar plaatsen.Alvast bedankt voor alle input!
/f/image/SxJn8uXbbCQ47cGOlwPHtVpq.png?f=fotoalbum_tile)
:strip_exif()/f/image/Z3jtB7awihzOLMYCRSzGVhig.jpg?f=fotoalbum_tile)
:strip_exif()/f/image/zwokGb2bHi0vlVMAY8UfkO0a.jpg?f=fotoalbum_tile)
:strip_exif()/f/image/akOMVZix33xbDu7wXVCRlUJm.jpg?f=fotoalbum_tile)