Hey Tweakers,
Ik ben momenteel bezig met de bouw van een nieuwe woning die zoals het hoort goed vol kabels ligt. Nu hebben ze net mijn voordeur met motor slot geplaatst maar nu zit ik met een klein probleem.
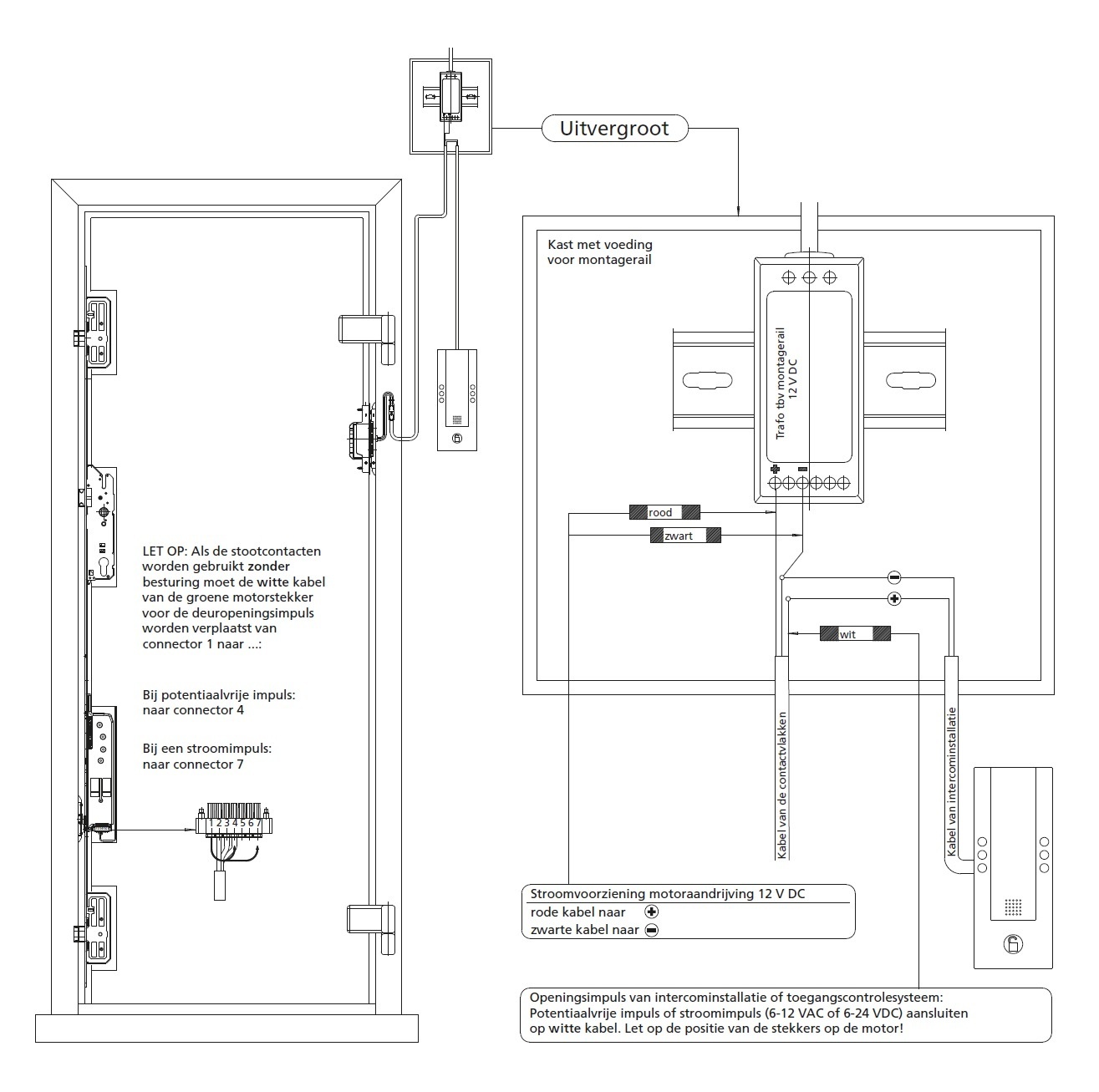
De bedoeling is dat het motorslot wordt aangestuurd vanuit mijn Loxone domotica systeem. Echter is ze geleverd met een extreem lullig kort kabeltje. Echt een meter extra en hij zat vlotjes in de kelder waar ik het zonder veel problemen kon verlengen.

Ik ben slechts een amateur met beperkte kennis en probeer de dingen zo goed mogelijk te doen maar spijtig genoeg heb ik momenteel niet nog een week om te zitten prullen en de juiste stukjes te zoeken daar ze binnenkort alles komen bezetten.
Er is een officiële kabel voor in het pluggetje te duwen van Fuhr (NZ80063A) echter kan ik niet direct een plek vinden om dit ding te bestellen (het is daarbij te kort om tot in de kast te geraken). Mijn enige idee op dit moment was de connector er af knippen, waggo klemmen op de 12V DC voedings kabels en met 2.5mm2 kabels naar de kast (om spanningsval tegen te gaan), dan nog een SVV kabel voor de data ader. Alles intapen en zo in de muur. Iets properdere optie is nog rap een verbindingsdoos inslijpen en het daar in doen, echter niet veel opties daar het kabeltje zo ongelofelijk kort is.
Alle tips zijn welkom. Alsook voor de aansluiting in Loxone maar dat is pret voor later.

Cheers
Ik ben momenteel bezig met de bouw van een nieuwe woning die zoals het hoort goed vol kabels ligt. Nu hebben ze net mijn voordeur met motor slot geplaatst maar nu zit ik met een klein probleem.
De bedoeling is dat het motorslot wordt aangestuurd vanuit mijn Loxone domotica systeem. Echter is ze geleverd met een extreem lullig kort kabeltje. Echt een meter extra en hij zat vlotjes in de kelder waar ik het zonder veel problemen kon verlengen.
Ik ben slechts een amateur met beperkte kennis en probeer de dingen zo goed mogelijk te doen maar spijtig genoeg heb ik momenteel niet nog een week om te zitten prullen en de juiste stukjes te zoeken daar ze binnenkort alles komen bezetten.
Er is een officiële kabel voor in het pluggetje te duwen van Fuhr (NZ80063A) echter kan ik niet direct een plek vinden om dit ding te bestellen (het is daarbij te kort om tot in de kast te geraken). Mijn enige idee op dit moment was de connector er af knippen, waggo klemmen op de 12V DC voedings kabels en met 2.5mm2 kabels naar de kast (om spanningsval tegen te gaan), dan nog een SVV kabel voor de data ader. Alles intapen en zo in de muur. Iets properdere optie is nog rap een verbindingsdoos inslijpen en het daar in doen, echter niet veel opties daar het kabeltje zo ongelofelijk kort is.
Alle tips zijn welkom. Alsook voor de aansluiting in Loxone maar dat is pret voor later.
Cheers