Ik ben sinds een aantal maanden bezig met een nieuwbouw woning. Vergunningstraject begint op te schieten (eind januari onherroepelijk) en ook met de bouwer / installateur heb ik bijna alle puntjes op de i gezet.
Een detail welke nog wel staat en waar ik maar een beperkte kennis van heb zijn de zonnepanelen. Het gaat om een vrijstaand huis met een dubbele garage, kortom ik zou de panelen kunnen plaatsen waar ik wil.
Mijn voorkeur ging initieel uit om de panelen te plaatsen op de garage en deels op de woning (zuiden), echter zitten mijn buren relatief dichtbij en zal ik dus last van schaduw hebben in bepaalde periodes.
Optie 2 (krijg de offerte binnenkort) zijn de panelen op het zuiden uitbreiden (al lijkt dat lastig door het dakkapel) en ~6 panelen toevoegen op het oosten en/of westen. Hiermee zou ik rond de 12 – 15 uitkomen.
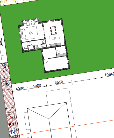
Ligging van de woning:

Mijn woning gaat nog een meter opgeschoven worden (zodat er 2 meter zit tussen mijn woning en de erfgrens). Exact afstand tot de buren heb ik nagevraagd en krijg ik nog een reactie op.
Panelen op het zuiden (deze komen er sowieso op, zitten standaard bij de woning)

Opstelling van de panelen zelf is is nog niet definitief!
Uitbreiding opties
Optie 1 is uitbreiden op de garage:

Optie 2: Panelen op het oosten (of westen)
Horizontaal opstelling

Verticaal

In alle gevallen gaat het om 300 WP panelen
De vraag is: wat is slim?
Een detail welke nog wel staat en waar ik maar een beperkte kennis van heb zijn de zonnepanelen. Het gaat om een vrijstaand huis met een dubbele garage, kortom ik zou de panelen kunnen plaatsen waar ik wil.
Mijn voorkeur ging initieel uit om de panelen te plaatsen op de garage en deels op de woning (zuiden), echter zitten mijn buren relatief dichtbij en zal ik dus last van schaduw hebben in bepaalde periodes.
Optie 2 (krijg de offerte binnenkort) zijn de panelen op het zuiden uitbreiden (al lijkt dat lastig door het dakkapel) en ~6 panelen toevoegen op het oosten en/of westen. Hiermee zou ik rond de 12 – 15 uitkomen.
Ligging van de woning:

Mijn woning gaat nog een meter opgeschoven worden (zodat er 2 meter zit tussen mijn woning en de erfgrens). Exact afstand tot de buren heb ik nagevraagd en krijg ik nog een reactie op.
Panelen op het zuiden (deze komen er sowieso op, zitten standaard bij de woning)

Opstelling van de panelen zelf is is nog niet definitief!
Uitbreiding opties
Optie 1 is uitbreiden op de garage:

Optie 2: Panelen op het oosten (of westen)
Horizontaal opstelling

Verticaal

In alle gevallen gaat het om 300 WP panelen
De vraag is: wat is slim?
