Wij staan op het punt om volgend jaar een redelijke verbouwing te gaan doen:
De (inpandige) bedrading kan tijdens de verbouwing makkelijk geoptimaliseerd worden , volgens mij kan die kookplaat zowel op enkel als op 3 fasen als ik de sheet goed bekijk?
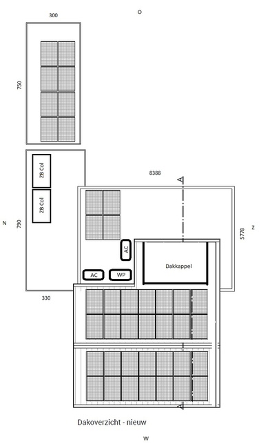
14 om 14 dan ligt het aan de voorkant (W) vol, de achterkant (O) zou nog plaats kunnen bieden aan 4 extra panelen. We weten alleen nog niet of we evt nog een dakkapel plaatsen op dat verlengde gedeelte op het oostdak. Komt WEL een dakkappel,.

ps, panelen staan op tekening niet goed, wordt 14/14, dak is 7,9mtr breed(nok)

Eigenverbruik hoop ik met O-W PV icm de (grotendeels) alleen overdag draaiende warmtepompen wel flink te optimaliseren t.o.v. nu.
Zouden jullie eens willen meedenken?
- Uitbreiding begane grond circa 35m2
- Platdak keuken/bijkeuken gaat er af en wordt gelijk getrokken met uitbouw
- Schuine dak wordt ontdaan van pannen, zal geïsoleerd worden, dan dakplaten erop.
- Uitbreiding PV op hoofdgebouw , 2x14 panelen (schuin dak op west en oost) = +/- 8400 WP op een 3 fase omvormer (omvormer moet ik nog uitkiezen)
- Resterende houten vloer hoofdgebouw+schelpen iso gaat eruit, wordt vervangen door een broodjesvloer icm vloerverwarming
- Nieuwe kozijnen boven (HR+++ ivm tegengaan koudeval)
- Aanbrengen dual split airco, boven (overloop) + beneden met als hoofddoel koelen, mss een multiunit (met 4x binnenunit 3 slaapkamers+beg grond) zowel koelen als verwarmen.
- Nieuwe keuken met inductie (we gebruiken nu nog 15-18m3 gas, alleen voor het koken)
- Vervangen/verplaatsen vloerverwarmingsverdeler voor een open verdeler
- Aanbrengen WTW-D ventilatie (type nog niet gekozen)
- Uitbreiding/upgraden meterkast naar 3 fasen, met wat voor specs moet ik rekening houden? Ik verwacht dat wij binnen nu en 5 jaar ook onze eerste EV zullen gaan rijden, zijn er nog zaken waar ik rekening mee moet houden (meterkast).
- Wat zal ik doen met de huidige PV set, 3315Wp ligt op dit moment op Oost (13x255Wp) op SMA SB3600 met nog garantie tot 2023), vanaf 2013 een kleine 20k kWh opgewekt tot op heden. Vraag mij zowieso af of een dergelijk formaat PV >10k Wp nog aan te raden valt met de salderingswijzigingen op handen. Het komt er bij ons toch op neer dat de auto 80% van de tijd in avond/nacht wordt opgeladen. Een hoge laadsnelheid is wel een pré omdat ik rond avondeten meestal 2-3 uurtjes thuis ben en dan weer onderweg ben., wordt herplaatsen op platdak garage en platdak tuinhuis
- Wel of niet volledig overgaan op L/L WP bovenverdieping? De radiatoren op slaapkamers kunnen dan evt weg, ze kunnen het nu tot circa 20 graden op de slaapkamer brengen, ik heb een tijdje(ivm thuiswerken) aangevuld met elek kachel, dat ging prima. Slapen doen we het liefst bij 16-17gr maar de oudste(5jr) zal binnen nu en 10 jaar in toenemende mate gebruik gaan maken van z'n slaapkamer buiten het slapen om. Ik wil eigenlijk de watertemp van de L/W naar beneden bijstellen omdat we beg grond volledig overgaan op vloerverwarming. Aanvoertemp is nu bij Ta=36gr bij buitenT onder 0. Dat moet na de verbouwing fors omlaag kunnen.
- Wel of niet de zonnecollectoren houden? Wellicht overgaan op landscape vlakke plaat (ivm estethisch).
- Huidige buis collectoren vervangen door vlakke plaat.
- Goede verspreiding van de zwaardere stroomverbruikers over de 3 fasen:
- Ev laden over alle 3 fasen(?)[/li] 3 buitenunits verdelen over de 3 fasen? (L/L Tuinkantoor, Multisplit LL Huis, L/W WP huis) Quoocker 3KW boilerelement
- Spouwiso
- Helft beg grond voorzien van vloerverwarming
- 3315WP PV
- 6KW L/W WP Hitachi RWD-2.5NWSE-260S = 260L SWW met solarspiraal
- 36 buizen zonnecollector
- Slimme meter, gekregen tijdens de 25A>35A verzwaring.
- L/L Mitsubishi 2.5KW L/L voor tuinkantoor (moet nog geplaatst worden)
De (inpandige) bedrading kan tijdens de verbouwing makkelijk geoptimaliseerd worden , volgens mij kan die kookplaat zowel op enkel als op 3 fasen als ik de sheet goed bekijk?
14 om 14 dan ligt het aan de voorkant (W) vol, de achterkant (O) zou nog plaats kunnen bieden aan 4 extra panelen. We weten alleen nog niet of we evt nog een dakkapel plaatsen op dat verlengde gedeelte op het oostdak. Komt WEL een dakkappel,.

ps, panelen staan op tekening niet goed, wordt 14/14, dak is 7,9mtr breed(nok)

Eigenverbruik hoop ik met O-W PV icm de (grotendeels) alleen overdag draaiende warmtepompen wel flink te optimaliseren t.o.v. nu.
Zouden jullie eens willen meedenken?
[ Voor 10% gewijzigd door Appie Heijn op 06-01-2020 13:52 ]
44x Trina 330WP @ SMA 10.00; Hitachi Yutaki 5,5KW AIO 280L
