Ik wil voor mijn recent gekochte woning (voorjaar 2018) zonnepanelen aanschaffen. Ik zou de graag op mijn schuur installeren om een aantal redenen:
1. het dak van mijn huis ligt oost-west. Op het oostdak zit een grote dakkapel en meerdere schoorstenen. De buren hebben ook een dakkapel. Dit maakt dat er bijna geen ruimte meer over is, en de weinige ruimte ligt in de schaduw.
2. Westkant ligt ook flink op schaduw door bomen en krijgt pas na 15.00 uur zon.
3. Wil het graag zelf installeren, en kan niet bij het dak van het huis.
4. Dak van schuur is 10 graden oost, heeft tot zeker 15.00 uur zon en nagenoeg schaduwvrij.
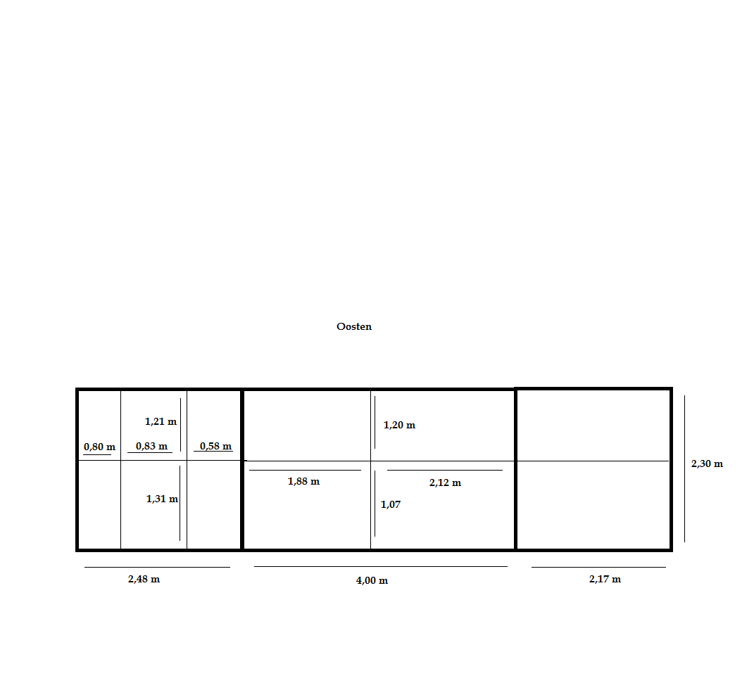
De schuur bestaat uit een aantal delen waarop golfplaat ligt (geen astbest). Het dak is één geheel en meet 2,30 x 8,65 meter. De hellingshoek is ~10 graden. Het dak ligt ook op het oosten.

Rode pijl wijst vanaf richting oost.


Dikke lijnen zijn muren, dunne lijnen zijn dragende balken.
De schuur wordt gevoed vanaf een aparte groep. Ik wil een PV-verdeler maken zodat ik de omvormer op dezelfde groep kan aansluiten als de schuurapparatuur.
Is dit haalbaar? Zit een beetje met de afstanden tussen de balken, daar zit redelijk wat ruimte tussen (zie 3e foto). In het meest linker schuurtje is de balkafstand korter.
Ik heb al een offerte uitstaan bij sun-solar.nl, maar zou graag eerst wat input hebben of het uberhaupt haalbaar is op dit dak, voordat ik hier veel tijd in stop.
1. het dak van mijn huis ligt oost-west. Op het oostdak zit een grote dakkapel en meerdere schoorstenen. De buren hebben ook een dakkapel. Dit maakt dat er bijna geen ruimte meer over is, en de weinige ruimte ligt in de schaduw.
2. Westkant ligt ook flink op schaduw door bomen en krijgt pas na 15.00 uur zon.
3. Wil het graag zelf installeren, en kan niet bij het dak van het huis.
4. Dak van schuur is 10 graden oost, heeft tot zeker 15.00 uur zon en nagenoeg schaduwvrij.
De schuur bestaat uit een aantal delen waarop golfplaat ligt (geen astbest). Het dak is één geheel en meet 2,30 x 8,65 meter. De hellingshoek is ~10 graden. Het dak ligt ook op het oosten.
Rode pijl wijst vanaf richting oost.
Dikke lijnen zijn muren, dunne lijnen zijn dragende balken.
De schuur wordt gevoed vanaf een aparte groep. Ik wil een PV-verdeler maken zodat ik de omvormer op dezelfde groep kan aansluiten als de schuurapparatuur.
Is dit haalbaar? Zit een beetje met de afstanden tussen de balken, daar zit redelijk wat ruimte tussen (zie 3e foto). In het meest linker schuurtje is de balkafstand korter.
Ik heb al een offerte uitstaan bij sun-solar.nl, maar zou graag eerst wat input hebben of het uberhaupt haalbaar is op dit dak, voordat ik hier veel tijd in stop.
[ Voor 35% gewijzigd door manusjevanalles op 10-03-2019 19:08 ]
☀️ 6440 Wp zuid | 🌡️ Stiebel Eltron WPL 15 ACS, HM Trend | Home Assistant