LankHoar schreef op maandag 4 februari 2019 @ 17:58:
Gisteren heb ik e.e.a. doorgesproken en daar is het volgende uitgekomen wat jullie vragen deels zal beantwoorden:
- 20 bezoekers maximaal tegelijkertijd
- 50 bezoekers zo nu en dan met events
- Budget staat open (ze gaan een bedrag voorstellen aan sponsoren aan de hand van mijn advies), wat in zekere zin positief is
- Netwerk zal gescheiden moeten worden in gasten + personeel
- Indien budget technisch beter kan het ook in 2 fases (nu de basis, later uitbreiden)
- Eisen voor bezoekers zijn laag, vooral tijdens events. Het hoeft niet allemaal razendsnel te zijn, zolang het voor personeel maar goed is
OK, begint al vorm te krijgen. Wat ik nog in bovenstaande mis is:
- onderscheid bedraad/WiFi. Dat er WiFi moet zijn is helder, en dat bezoekers allicht enkel via WiFi verbinden ook, maar hoe zit het met medewerkers? Zitten sommigen van hen achter vaste (hopelijk bedrade...) PCs? En zo ja waar zitten die?
- 20-50 bezoekers; OK, maar hoe zit het met aantallen medewerkers?
- wat gaan die bezoekers doen? Alleen minimaal surfen? Netflix of andere externe streamingdiensten kijken? In-house content gebruiken? En zo ja wat dan? (type+bandbreedte)
- het moet "goed" zijn voor personeel - wat is "goed", welke diensten zijn mission-critical en moeten ongehinderd kunnen draaien? En wat eisen ze?
- aan wat voor internetverbinding komt dit allemaal te hangen?
Los van bovenstaande is al duidelijk dat je in ieder geval nodig hebt:
- Mogelijkheid tot gescheiden VLANs, in ieder geval voor beheer, medewerkers en bezoekers.
- E2E QoS/Airtime management, zodat je bepaald verkeer (of iig VLANs) voorrang kunt geven over andere.
- 50 bezoekers max is niet veel, tenzij ze allemaal in zelfde ruimte gaan zitten.
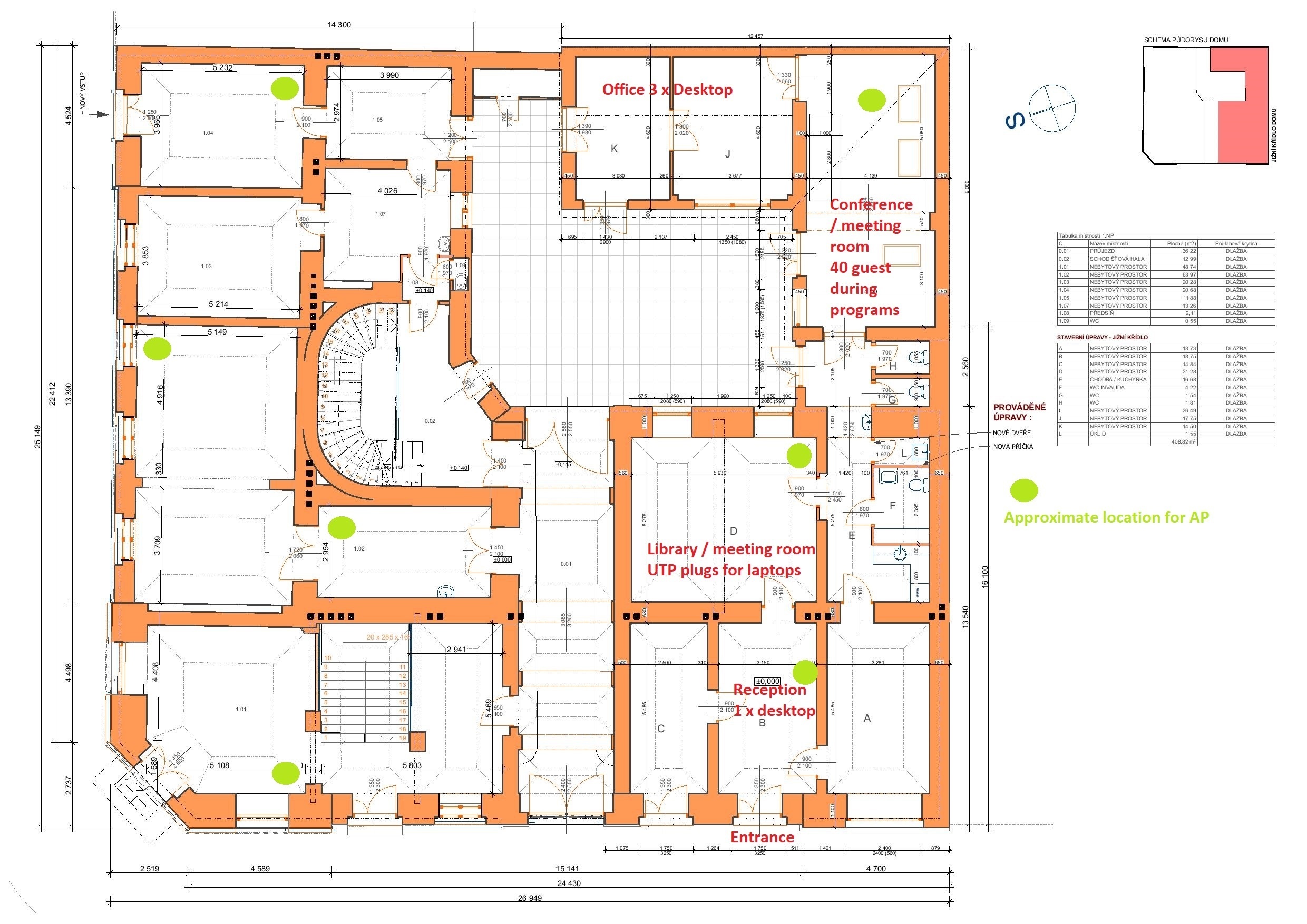
En hier is een plattegrond (in het Tsjechisch, maar schept hopelijk enige duidelijkheid). Daar waar ik een rode cirkel heb geplaatst hangt momenteel e.e.a. aan telefoonlijn spul, maar is al sinds begin jaren '90 niet meer in gebruik en onbruikbaar. Daar zal wel de verbinding met buiten gemaakt gaan worden.
[
Afbeelding: Library plans]
Ah, dobrý
Als ik het goed interpreteer zijn de gearceerde muren van baksteen. Dat kan flink dempen of juist niet, afhankelijk van exacte compositie. Site survey is dus geen overbodige luxe. Dat gezegd, plaatje is vrij duidelijk waar de pijnpunten zitten. De kantoren bovenin links zitten in een uithoek, dus dekking daar zou wel eens een probleem kunnen zijn. Onderin veel muren, dus ook daar mogelijk dekkingsissues. Qua capaciteit springt de conferentiezaal bovenin rechts in het oog - daar zouden wel eens 40 van die 50 mensen tegelijk kunnen zitten. Onderin rechts is het kleine vergaderzaaltje allicht minder uitdagend.
Klopt het dat dit een gebouw is van een enkele verdieping? Dat scheelt iig dat je maar in twee dimensies rekening hoeft te houden met signaal. Hoe zit het met de omgeving? Is er WiFi-interferentie te verwachten?
We hebben afgesproken dat ik eens ga kijken wat de kosten voor zo'n site survey zullen zijn, ga ik dus nog achteraan. Ook op werk maar eens kijken of er iemand de kennis hiervoor heeft en bereidwillig is om te helpen. Ze vermoeden in maart te beginnen met verbouwen, en een schatting van de kosten zou handig zijn in de komende 1-3 weken. Ze gaven aan dat het niet super precies komt, maar of we praten over XXX of XXXX euro zeg maar. Ze stonden ook open om met tweedehands spul te werken, indien dat goed uitkomt, en zeiden zelf ook te gaan polsen met connecties bij bedrijven etc.
Leuk projectje, en nu ik het mag begeleiden i.p.v. alles zelf doen vind ik het alsnog leuk om er bij betrokken te zijn


LankHoar schreef op maandag 11 februari 2019 @ 13:50:
Heb 3 bedrijven aangeschreven en zojuist de eerste offerte binnen voor een site survey: ruim 3K ex.BTW, dus best pittig. Ben benieuwd of dat in het budget gaat passen, en of de andere 2 offertes lager uitvallen..
In CZ dat soort bedrag... whoa
Als je niets goedkopers aangeboden krijgt van de andere twee zou het wel eens goedkoper kunnen zijn om zelf spullen te kopen en het jezelf aan te leren... en gezien je enthousiasme is dat misschien nog haalbaar ook.
Voor een goede site survey heb je in ieder geval een spectrum analyzer nodig. Metageek's WiSpy DBx is een goede, eenvoudige en relatief betaalbare, voor EUR 600 bij wifishop.nl. De Chanalyzer software is goed, maar bijna zo duur als de hardware, EUR 477 (of EUR 900 voor combo met de WiSpy DBx). Er zijn erg primitieve maar bruikbare Linux tools die gratis zijn en met de WiSpy kunnen samenwerken, als je moet bezuinigen. Verder is Ekahau Site Survey *de* standaard site-survey app. Helaas kost de minimale versie al > EUR 2k, dus ga je daar in de problemen komen. Gelukkig hebben ze ook de gratis Ekahau Heatmapper. Die vergt iets meer eigen werk en inzicht dan Site Survey, maar voldoet voor jouw toepassingen waarschijnlijk ruimschoots. Alternatief is trouwens VisiWave, dat m.i. beetje in spagaat zit tussen spectrum analysis en site survey, maar met EUR 700 nog redelijk betaalbaar is - en bovendien de noodzaak voor Chanalyser verkleint.
Tenslotte heb je ook kennis nodig om die dingen te gebruiken. Ik kan de CWNP-trainingen van harte aanraden, maar daar ga je qua budget ws ook nat. Quick&dirty is de CWNA Study Guide te kopen en zelf door te nemen. Dat kost ~ EUR 50. Zorg ervoor dat je een recente uitgave (minimaal 5th edition - op Bol hebben ze ook oude meuk waar je met grote boog omheen moet lopen tenzij je uitentreuren details over niet (meer) relevante zooi wilt) neemt, en ik zou papier boven ebook aanraden.
Kortom, voor EUR 950 kun je qua tooling klaar zijn om een bruikbare site survey uit te voeren, of EUR 650 als je echt wilt hobbyen. Mogelijk kunnen die bedragen in CZ iets omlaag, maar ik zou daar niet teveel op rekenen. Bovendien zijn dit bedrage incl BTW en kun je mogelijk iets ex BTWd own.
Voor troubleshooting als het eenmaal draait wil je ook packet capture kunnen doen. Daar zijn allemaal dure oplossingen voor, maar makkelijkste is simpel: een willekeurige MacBook. Onder MacOS kun je namelijk met Wireshark zonder extra hard- of software packetcapture doen. Die MacBook hoeft niet nieuw te zijn, sterker nog, een najaar 2014 13" MacBook Pro is technisch betere optie dan een splinternieuwe.
Maar goed, onderschat bovenal niet hoeveel tijd erin gaat zitten om dit onder de knie te krijgen. Die EUR 3k voor een site survey klinkt exorbitant (en is dat IMHO voor een klein projectje als dit ook), maar als je je tijd (tegen enigszins redelijk uursalaris) meerekent gaat het al snel meer kosten - ga uit van zeker 20u zelfstudie, en uitvoering minimaal een hele dag, zo niet meerdere (want eerste keer dat je het doet etc.). Dat moet je ervoor over hebben.
Oh, en bovenstaande betreft dus alleen de kennis & tooling voor WiFi. Niet de apparatuur die je gaat installeren. Bovendien leer je er niets over VLANs e.d.
Qua keuze apparatuur... gezien het CZ is zou je bij nic.cz kunnen gaan kijken, maar wat je daar vindt heeft allicht een te grote hobbyfactor
ik heb zelf trouwens een Turris Omnia van hen in de meterkast staan, ben ik voor flink hobbyend thuisgebruik erg blij mee. Omdat je dit linksom of rechtsom met hooguit minimale kennis gaat doen is gemak/eenvoud relevant.
Ubiquiti's spul is al genoemd, je kunt ervoor kiezen om alles (router+switches+AP's) met hun spul te doen. Dat is zonder meer makkelijkste optie: je kunt binnen één GUI omgeving zowel WiFi als VLANs doen (en die twee aan elkaar koppelen) en ook alle beheer vanuit centraal dashboard doen. Het is in ieder geval de goedkoopste optie waarbij je dat allemaal kunt, dus waarschijnlijk een handige. Ook omdat je vanuit de community (incl deze) hulp kunt krijgen.
Of het EUR XXX of XXXX gaat zijn hangt er vanaf hoeveel AP's je nodig gaat hebben en hoeveel switchpoorten, maar het gaat iig niet meerdere XXXX worden als ik het zo zie. Enige twijfel is dus hoe hoog de eisen zijn (zie vragen hierboven) en hoeveel die bakstenen muren in de weg zitten.