Ook ik ben op zoek naar zonnepanelen en een eigen topic geopend aangezien het anders zo verdwaald terecht komt. Er zullen nog wel meer vragen komen
.
De situatie:
Luchtfoto

Huis met rode stip.
Voorkant dak

Oriëntatie is 124 graden (ESE) en dakhelling 45 graden.
Hier zie je ook 2 ventilatie dakpannen met een hoogte van circa 8 cm boven de dakpan. De rechtse zit op de grens met de buren.
achterkant dak

Oriëntatie is 304 graden (NW) en dakhelling 45 graden.
zoninstralling

Schaduw (vandaag)
(let niet op de witte palen; die zijn alleen maar om de schaduw beter zichtbaar te maken).

Rond 09:00.

Rond 14:00.
Garage hier ook zichtbaar. Oriëntatie zijkant garage is 214 graden (ZZW). Later in het jaar zal de schaduw van het huis van de buren over de panelen trekken.
Afmetingen dak voor:

Legplan:

Er zou nog 1 paneel bij kunnen in dat gat boven die 2 links maar daar komt schaduw van de kajuit. Rechts daarvan zou ook nog 1 portrait kunnen maar daar wil ik ruimte houden voor schilderen van de kajuit.
Die onderste 2 panelen linksonder ga ik waarschijnlijk niet doen aangezien dat met de omvormer niet helemaal uit gaat komen. Daarover later meer. Totaal wordt het dus 12 stuks.
Afmetingen en legplan garage:

Ik zou ze willen richten naar het SSW en dan in portrait met circa 20 graden. Ik zou er meer kwijt kunnen maar dat doe ik liever niet aangezien ik ruimte wil houden op het dak om te kunnen schilderen etc. Ze komen dus zo ver mogelijk naar links te liggen. 8 stuks dus totaal.
De garage staat een ook stukje naar achteren dus panelen richten op ESE (zoals de voorkant) heeft naar mijn idee wat minder zin door de schaduw 's morgens van het huis.
Overigens zijn portrait legmaterialen spaarzaam te vinden. Waarschijnlijk ga ik dit zelf maken met houten balken zoals anderen dit ook al hebben laten zien.
Afmetingen achter:

Daar zitten 2 dakramen en nog een pijp voor de mechanische ventilatie. Die pijp ga ik vervangen door zo'n Klöber Venduct ventilatie dakpan. Dan heb ik daar geen last meer van.
Legplan

Totaal 13 stuks. Er zouden meer kunnen maar ook hier moet ik ruimte houden voor schilderen. Maar ook door de oriëntatie NW leveren deze relatief minder op.
Door deze dakvlakken zorgt de voorkant voor een piek om 12:00, de achterkant om 17:00 en de garage om 14:00.
Totaal dus 32 panelen.
Ik heb 1x25A aansluiting op dit moment. Deze wil ik laten vergroten naar 1x40A.
3 fase gebruik ik niet. Bovendien heb ik per definitie 2 omvormers nodig aangezien ik 3 strings ga krijgen.
Solaredge wil ik niet aangezien ik vrijwel geen schaduw heb. Bovendien lijkt het me maar niks om extra electronica onder de panelen te hebben. En natuurlijk ook de extra kosten die dat gaat opleveren..
Ben veel wezen spelen met SMA Sunny Design Web. Naar mijn idee de meeste mogelijkheden en bevat ook recente panelen in de database. Ben even uit gegaan van Canadian Solar 300W panelen als voorbeeld. De veel duurdere Panasonic Hit kuro of LG zie ik even geen meerwaarde in en kost flink meer.
Met panelen met hogere wattages kom ik ook met de onvormers in de knel.
Als ik 3 fase zou doen zou ik ook 15 panelen aan de voorkant kunnen doen omdat dit wel past. Echter kom ik dan uit op een 3 fase 5K en 2.5K 1 fase omvormer. Jaar opbrengst 8441 kWh.
Omschakeling naar 3 fase in de meterkast brengt ook weer extra kosten met zich mee. Dat geldt ook voor de 3 fase omvormer.
Dus probeer ik de te blijven op 1 fase 40A. Idee is om daar 2 aparte groepen op aan te sluiten met ieder 25A of 20A automaten (=selectief). Met 2x12 op een SMA 4K en 1x8 op SMA 3K kom ik dan totaal op 18+10=28A volgens Sunny Design Web. Ruim onder de 40A dus. In hoeverre dit inderdaad mag is nog niet helemaal duidelijk. De verschillende websites spreken elkaar wat tegen.

Jaar opbrengst wordt dan circa 7700 kWh. Lijkt me een mooie opbrengst.
Sunny Web Design kwam trouwens met automatische configuratie zelf op deze combinatie en niet met de 3 fase omvormers (alleen als het aantal panelen nog wat verder verhoog). Waarschijnlijk door de redelijk ongunstige NW oriëntatie van de achterkant. Een zonnepanelen adviseur gaf aan dat 32 panelen op 1 fase nooit kon.
Nog even de verdeling van de jaaropbrengst: voor geeft 3170, achter 2200 en garage 2250 kWh.
Wat ik ook gemerkt heb ik Sunny Web Designer dat het niet heel veel uitmaakt in opbrengst als je in mijn geval ipv een 4K omvormer voor een 5K of 3.6K omvormer kiest voor de 2x12. Maar een tiental kWh verschil. Dat had ik niet verwacht.
Ik overweeg ook gezien het prijsverschil ipv de 3K omvormer om de 3.6K of 4K te kopen. Prijs verschil is klein en geeft nog wat extra ruimte voor de garage mocht dat ooit nodig zijn./
Ik heb nog geen offertes gevraagd. Garage ga ik in ieder geval zelf doen, misschien ook wel in een later stadium. De rest twijfel ik nog over zelf doen. Ik ben niet zo'n dakhaas.
Zit er sterk over denken om bij Solar-bouwmarkt te shoppen. Naar mijn idee behoorlijk scherp geprijsd.
Bovendien zijn er zoveel partijen dat ik geen idee heb welke te kiezen.
Ik ben benieuwd of jullie nog opmerkingen hebben over deze opzet?
Met name ook de omvormer opzet.
De situatie:
Luchtfoto

Huis met rode stip.
Voorkant dak

Oriëntatie is 124 graden (ESE) en dakhelling 45 graden.
Hier zie je ook 2 ventilatie dakpannen met een hoogte van circa 8 cm boven de dakpan. De rechtse zit op de grens met de buren.
achterkant dak

Oriëntatie is 304 graden (NW) en dakhelling 45 graden.
zoninstralling

Schaduw (vandaag)
(let niet op de witte palen; die zijn alleen maar om de schaduw beter zichtbaar te maken).

Rond 09:00.

Rond 14:00.
Garage hier ook zichtbaar. Oriëntatie zijkant garage is 214 graden (ZZW). Later in het jaar zal de schaduw van het huis van de buren over de panelen trekken.
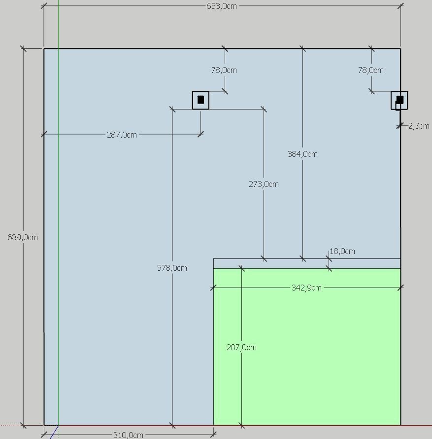
Afmetingen dak voor:

Legplan:

Er zou nog 1 paneel bij kunnen in dat gat boven die 2 links maar daar komt schaduw van de kajuit. Rechts daarvan zou ook nog 1 portrait kunnen maar daar wil ik ruimte houden voor schilderen van de kajuit.
Die onderste 2 panelen linksonder ga ik waarschijnlijk niet doen aangezien dat met de omvormer niet helemaal uit gaat komen. Daarover later meer. Totaal wordt het dus 12 stuks.
Afmetingen en legplan garage:

Ik zou ze willen richten naar het SSW en dan in portrait met circa 20 graden. Ik zou er meer kwijt kunnen maar dat doe ik liever niet aangezien ik ruimte wil houden op het dak om te kunnen schilderen etc. Ze komen dus zo ver mogelijk naar links te liggen. 8 stuks dus totaal.
De garage staat een ook stukje naar achteren dus panelen richten op ESE (zoals de voorkant) heeft naar mijn idee wat minder zin door de schaduw 's morgens van het huis.
Overigens zijn portrait legmaterialen spaarzaam te vinden. Waarschijnlijk ga ik dit zelf maken met houten balken zoals anderen dit ook al hebben laten zien.
Afmetingen achter:

Daar zitten 2 dakramen en nog een pijp voor de mechanische ventilatie. Die pijp ga ik vervangen door zo'n Klöber Venduct ventilatie dakpan. Dan heb ik daar geen last meer van.
Legplan

Totaal 13 stuks. Er zouden meer kunnen maar ook hier moet ik ruimte houden voor schilderen. Maar ook door de oriëntatie NW leveren deze relatief minder op.
Door deze dakvlakken zorgt de voorkant voor een piek om 12:00, de achterkant om 17:00 en de garage om 14:00.
Totaal dus 32 panelen.
Ik heb 1x25A aansluiting op dit moment. Deze wil ik laten vergroten naar 1x40A.
3 fase gebruik ik niet. Bovendien heb ik per definitie 2 omvormers nodig aangezien ik 3 strings ga krijgen.
Solaredge wil ik niet aangezien ik vrijwel geen schaduw heb. Bovendien lijkt het me maar niks om extra electronica onder de panelen te hebben. En natuurlijk ook de extra kosten die dat gaat opleveren..
Ben veel wezen spelen met SMA Sunny Design Web. Naar mijn idee de meeste mogelijkheden en bevat ook recente panelen in de database. Ben even uit gegaan van Canadian Solar 300W panelen als voorbeeld. De veel duurdere Panasonic Hit kuro of LG zie ik even geen meerwaarde in en kost flink meer.
Met panelen met hogere wattages kom ik ook met de onvormers in de knel.
Als ik 3 fase zou doen zou ik ook 15 panelen aan de voorkant kunnen doen omdat dit wel past. Echter kom ik dan uit op een 3 fase 5K en 2.5K 1 fase omvormer. Jaar opbrengst 8441 kWh.
Omschakeling naar 3 fase in de meterkast brengt ook weer extra kosten met zich mee. Dat geldt ook voor de 3 fase omvormer.
Dus probeer ik de te blijven op 1 fase 40A. Idee is om daar 2 aparte groepen op aan te sluiten met ieder 25A of 20A automaten (=selectief). Met 2x12 op een SMA 4K en 1x8 op SMA 3K kom ik dan totaal op 18+10=28A volgens Sunny Design Web. Ruim onder de 40A dus. In hoeverre dit inderdaad mag is nog niet helemaal duidelijk. De verschillende websites spreken elkaar wat tegen.

Jaar opbrengst wordt dan circa 7700 kWh. Lijkt me een mooie opbrengst.
Sunny Web Design kwam trouwens met automatische configuratie zelf op deze combinatie en niet met de 3 fase omvormers (alleen als het aantal panelen nog wat verder verhoog). Waarschijnlijk door de redelijk ongunstige NW oriëntatie van de achterkant. Een zonnepanelen adviseur gaf aan dat 32 panelen op 1 fase nooit kon.
Nog even de verdeling van de jaaropbrengst: voor geeft 3170, achter 2200 en garage 2250 kWh.
Wat ik ook gemerkt heb ik Sunny Web Designer dat het niet heel veel uitmaakt in opbrengst als je in mijn geval ipv een 4K omvormer voor een 5K of 3.6K omvormer kiest voor de 2x12. Maar een tiental kWh verschil. Dat had ik niet verwacht.
Ik overweeg ook gezien het prijsverschil ipv de 3K omvormer om de 3.6K of 4K te kopen. Prijs verschil is klein en geeft nog wat extra ruimte voor de garage mocht dat ooit nodig zijn./
Ik heb nog geen offertes gevraagd. Garage ga ik in ieder geval zelf doen, misschien ook wel in een later stadium. De rest twijfel ik nog over zelf doen. Ik ben niet zo'n dakhaas.
Zit er sterk over denken om bij Solar-bouwmarkt te shoppen. Naar mijn idee behoorlijk scherp geprijsd.
Bovendien zijn er zoveel partijen dat ik geen idee heb welke te kiezen.
Ik ben benieuwd of jullie nog opmerkingen hebben over deze opzet?
Met name ook de omvormer opzet.
