Hoi mede-tweakers!
Ik heb een vraag i.v.m. de plaatsing van, en het aantal benodigde access points, in een nieuwbouw huis (wordt momenteel gebouwd). Ons huisje zal één verdieping hebben (dus: gelijkvloers en eerste verdieping) en wordt gemaakt in houtskeletbouw. Ons huisje zal in totaal 138m² bewoonde oppervlakte hebben (dus niet al te groot).
Als router gaan we de router van de lokale ADSL provider nemen (wonen in het buitenland en hebben jammer genoeg geen toegang tot kabel-internet). Aangezien ik zelf goede ervaringen heb met Ubiquiti Unifi AP's zou ik ditmaal voor zowel switch als AP's opnieuw voor Ubiquiti kiezen, meer bepaald een Ubiquiti Unifi us-24-250w switch met één of twee Ubiquiti Unifi AC LITE AP's. Voorts komt er ook nog een videobewakingssysteem (momenteel gepland, ook een Ubiquiti oplossing, maar hierover open ik nog een apart topic).
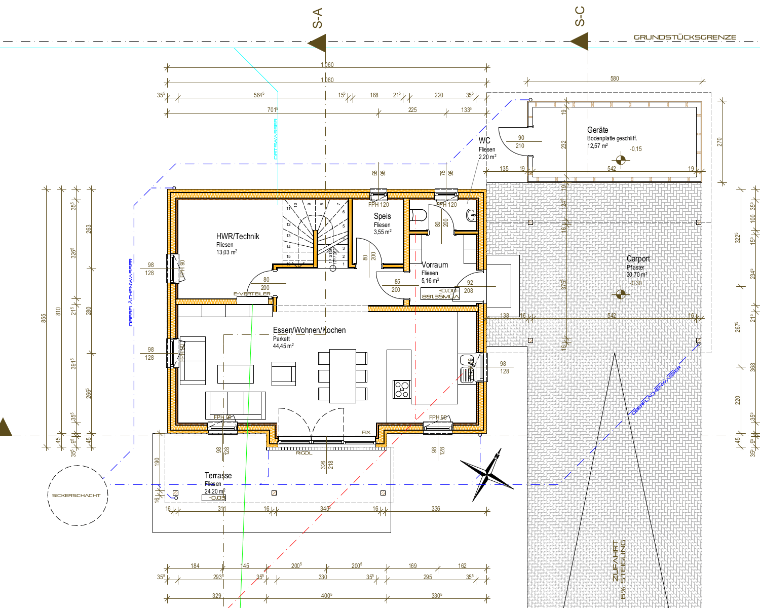
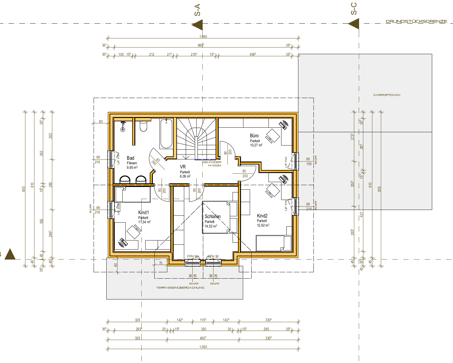
De plattegrond van het gelijkvloers en de eerste verdieping vind je hier:
en 
Oorspronkelijk was het de bedoeling om één AP beneden in de woonkamer te hangen, en een tweede op de eerste verdieping in de hal. Omdat we echter een mooi houten plafond hebben, vroeg ik me af of we met één AP toekomen, bijvoorbeeld in de techniekruimte onder de trap. Optisch zou dit de beste oplossing zijn, de vraag is hoe goed het netwerksignaal dan in het ganse huis is... Wat denken jullie? Is één AP, bijvoorbeeld onder de trap, voldoende? Mensen die ervaring hebben met WiFi signalen en houtskeletbouw?
Indien we bij één AP blijven, loont het dan de moeite een Unifi AC LR of Pro variant te nemen i.p.v. de LITE variant, om het signaal te verbeteren? Of is dit weggesmeten geld?
Dank alvast voor jullie input!
Vriendelijke groet,
Diederik
Ik heb een vraag i.v.m. de plaatsing van, en het aantal benodigde access points, in een nieuwbouw huis (wordt momenteel gebouwd). Ons huisje zal één verdieping hebben (dus: gelijkvloers en eerste verdieping) en wordt gemaakt in houtskeletbouw. Ons huisje zal in totaal 138m² bewoonde oppervlakte hebben (dus niet al te groot).
Als router gaan we de router van de lokale ADSL provider nemen (wonen in het buitenland en hebben jammer genoeg geen toegang tot kabel-internet). Aangezien ik zelf goede ervaringen heb met Ubiquiti Unifi AP's zou ik ditmaal voor zowel switch als AP's opnieuw voor Ubiquiti kiezen, meer bepaald een Ubiquiti Unifi us-24-250w switch met één of twee Ubiquiti Unifi AC LITE AP's. Voorts komt er ook nog een videobewakingssysteem (momenteel gepland, ook een Ubiquiti oplossing, maar hierover open ik nog een apart topic).
De plattegrond van het gelijkvloers en de eerste verdieping vind je hier:
Oorspronkelijk was het de bedoeling om één AP beneden in de woonkamer te hangen, en een tweede op de eerste verdieping in de hal. Omdat we echter een mooi houten plafond hebben, vroeg ik me af of we met één AP toekomen, bijvoorbeeld in de techniekruimte onder de trap. Optisch zou dit de beste oplossing zijn, de vraag is hoe goed het netwerksignaal dan in het ganse huis is... Wat denken jullie? Is één AP, bijvoorbeeld onder de trap, voldoende? Mensen die ervaring hebben met WiFi signalen en houtskeletbouw?
Indien we bij één AP blijven, loont het dan de moeite een Unifi AC LR of Pro variant te nemen i.p.v. de LITE variant, om het signaal te verbeteren? Of is dit weggesmeten geld?
Dank alvast voor jullie input!
Vriendelijke groet,
Diederik
Experience the mountains!