Wij gaan in mei beginnen met bouw van onze nieuwbouw woning 2 onder 1 kap. Echter werd het huis geleverd met 4 panelen en kost elk extra paneel 400 euro inclusief btw en montage. Om ons streef wattage te komen zouden wij ruim 8 panelen bij moeten plaatsen. a 3200 euro. Dit vond ik vrij prijzig en stelde de vraag andersom hoeveel krijg ik terug als ik zelf een 10+ installatie a 3500 watt plaats. Hierop kregen wij een minder prijs van 1920 euro inclusief btw (inclusief vervallen boiler keuken). Aangezien we gaan beschikken over een een plat dak van de uitbouw en deel garage leek het mij een koud kunstje om zelf de panelen te monteren en laten aansluiten op de meterkast door de installateur.
Doel?
11/12 zonepanelen met piekvermogen van 3500 watt totaal
voor een bedrag van max 3500€ inclusief btw, doel is om de meerprijs van de installatie binnen 2 jaar terug te verdienen.
Ruimte?
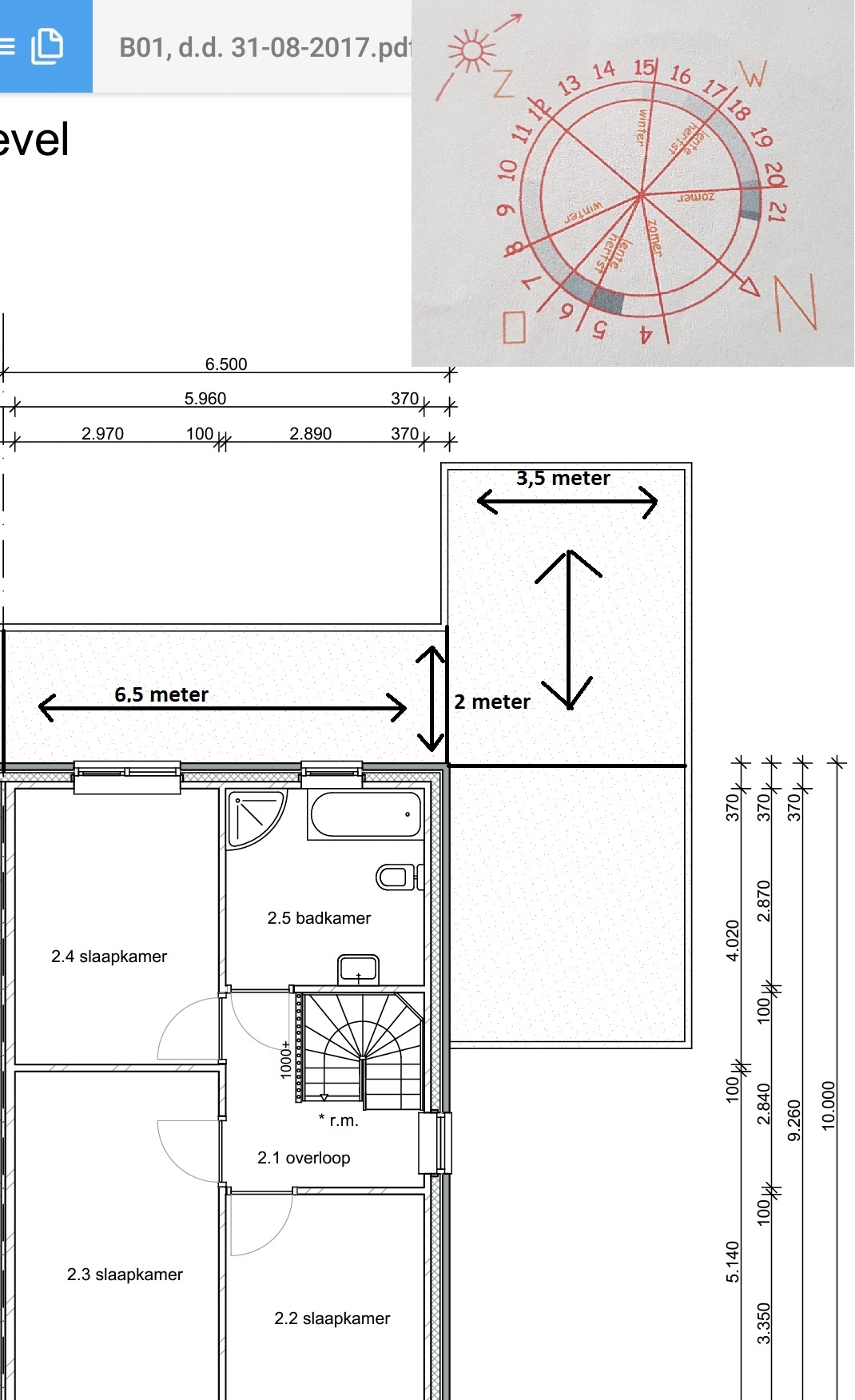
Stuk uitbouw van de benedenverdieping is 6,5 breed bij 2m lang. kunnen daar 6 panelen liggen in portret ligging?
Garage is 3,5m bij 9,2 waarvan 3,5m bij 4 bruikbaar is zonder last te hebben van de boven verdieping.
Hier wou ik 2x3 panelen neer leggen ook in portret.
Kom ik met deze ruimtes weg ook ivm wind/storm voldoende verankering? en is het mogelijk om weg te komen met 20/30graden hoek ?
Situatie:

Doel?
11/12 zonepanelen met piekvermogen van 3500 watt totaal
voor een bedrag van max 3500€ inclusief btw, doel is om de meerprijs van de installatie binnen 2 jaar terug te verdienen.
Ruimte?
Stuk uitbouw van de benedenverdieping is 6,5 breed bij 2m lang. kunnen daar 6 panelen liggen in portret ligging?
Garage is 3,5m bij 9,2 waarvan 3,5m bij 4 bruikbaar is zonder last te hebben van de boven verdieping.
Hier wou ik 2x3 panelen neer leggen ook in portret.
Kom ik met deze ruimtes weg ook ivm wind/storm voldoende verankering? en is het mogelijk om weg te komen met 20/30graden hoek ?
Situatie:
Members only: title
Alleen zichtbaar voor ingelogde gebruikers.
Inloggen